Vuokrataan toimistotilat - Helsinki
Kuortaneenkatu 5, Vallila, 00520 Helsinki #10777519
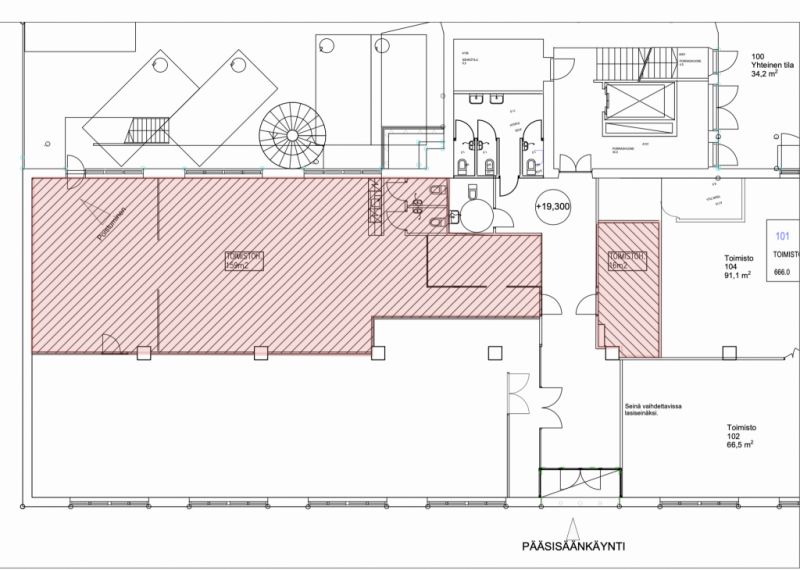
Vuokrattavana 4. kerroksessa industrialhenkinen, moderni toimistotila. Tila koostuu avotilasta ja kahdesta neukkariksi soveltuvasta huoneesta. Omat keittiö, wc/sosiaalitilat.
Tekosilkkikutomo sijaitsee hyvien kulkuyhteyksien äärellä ( bussipysäkki n 200 m, raitiovaunupysäkki alle 300 m). Tila on muunneltavissa asiakkaan tarpeiden mukaan.
Osoite
Kuortaneenkatu 5, 00520 Helsinki
Tilatyyppi
Toimistotilaa
201 m2
Vapautuu
Kysy
Huoneiden lukumäärä
1
Energiatehokkuusluokka
Ei lain edellyttämää energiatodistusta
Ota yhteyttä
RHG Real Estate
Hämeenkatu 2 B20, 20500 Turku
Näytä puhelinnumero
020 734 4020
Mika Tilli
Välittäjä, LKV
Näytä puhelinnumero
0407013005
Pyydä lisätietoa
