Vuokrataan toimistotilat - Helsinki
Sörnäisten Rantatie 25, Sörnäinen, 00500 Helsinki #10777452
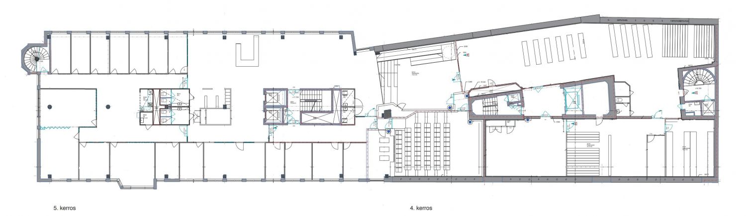
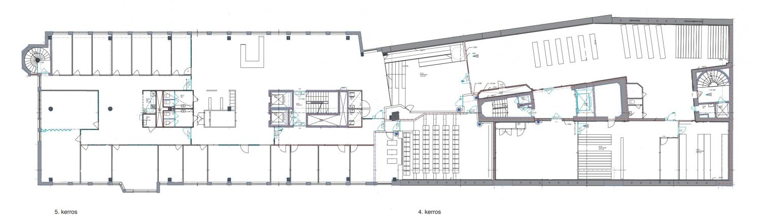
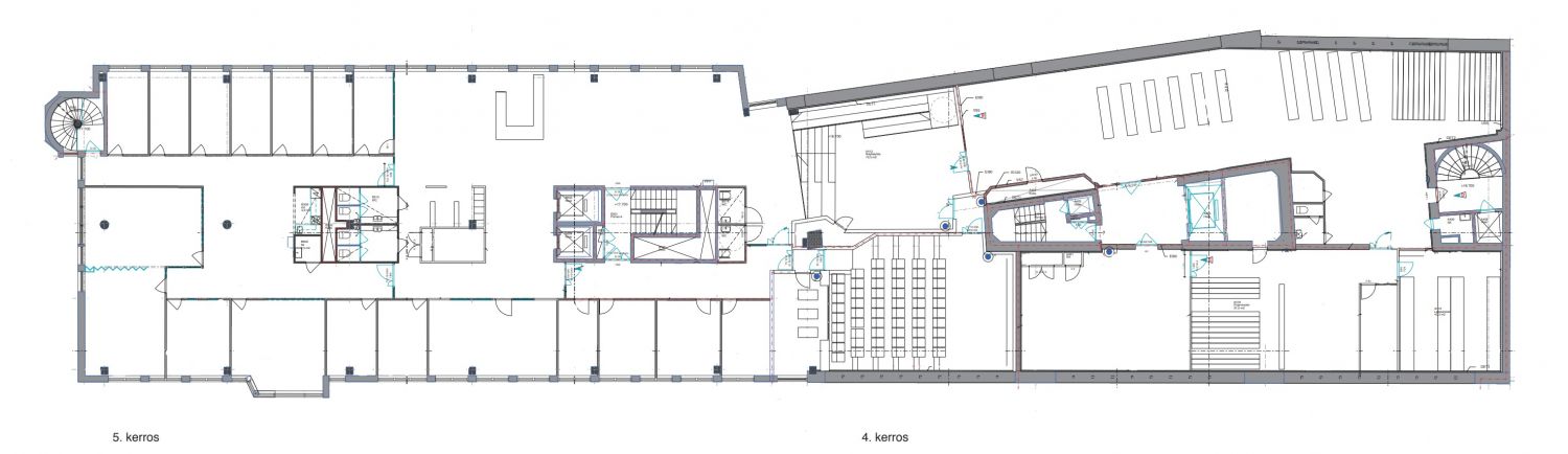
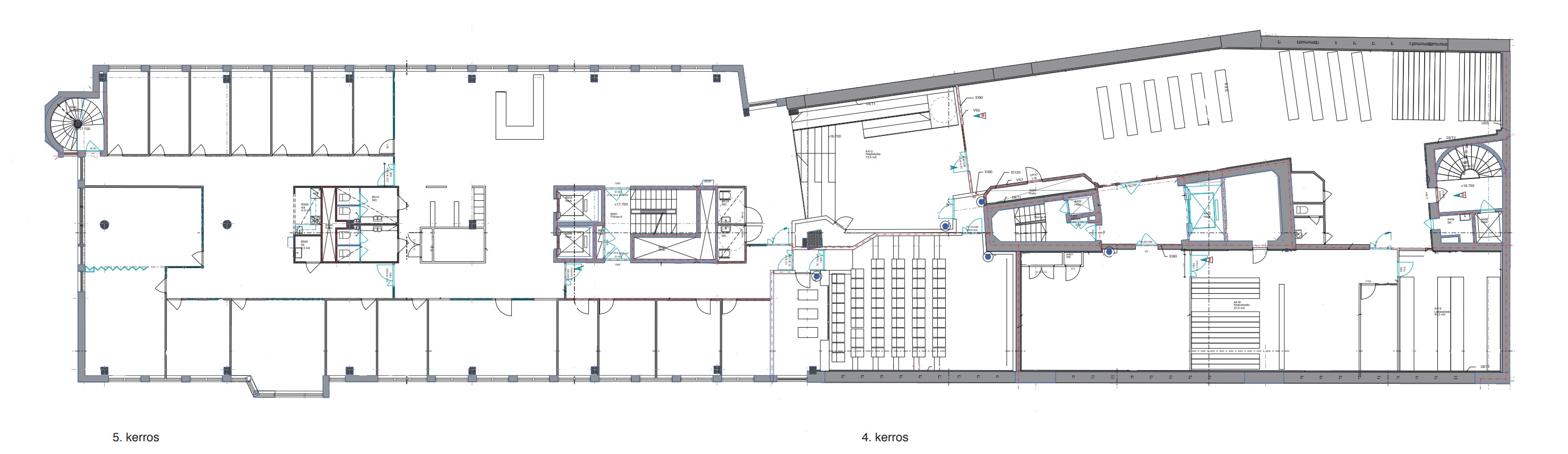
Huoneistosta löytyy tavallista toimistoa, jonka lisäksi tilaa on käytetty avoimena aula- ja näyttelytilana. Toimistotiloja täydentävät oma taukotila keittiöineen sekä wc:t. Tilassa on myös koe-elokuvateatteri. Kaikki ilmoituksen kuvat eivät välttämättä vastaa juuri tätä tilaa.
Sörnäisten rantatie 25 tarjoaa siistiä toimitilaa helposti saavutettavalla paikalla Sörnäisissä. Toimistotilaa löytyy useasta kerroksesta, ja tilaa löytyy avokonttorina, huonetoimistona ja jopa koe-elokuvateatterina tai studiona. Tämä kiinteistö tarjoaa joustavia mahdollisuuksia monessa eri kokoluokassa, joten otathan yhteyttä niin keskustellaan, sopiiko se teidän tarkoituksiinne.
Croisette on uusi ja innovatiivinen toimitilojen välitysyritys Suomessa. Meillä on vahva halu auttaa teitä löytämään paras toimitilaratkaisu mahdollisimman vaivattomasti.
Huomaathan, että kaikki vapaat ja vapautuvat tilat ovat kauttamme saatavilla. Osa tiloista on hiljaisessa markkinoinnissa, mutta ottamalla meihin yhteyttä saat nekin tietoosi.
Palvelumme on tilanhakijoille täysin maksutonta.
Hissi
Croisette Real Estate Partner
Erottajankatu 5 A 6, 00130 Helsinki
Näytä puhelinnumero
+358 400 585 857
Croisette Vuokraus
Näytä puhelinnumero
+358400585857
