Vuokrataan toimistotilat - Espoo
Vaisalantie 2 A, Otaniemi, 02130 Espoo #10777355
Vuokrataan näyttävä toimistokokonaisuus, joka on yhdistetty sisäportaikolla. Toimistolla on myös oma iso terassi. Tilat ovat modernia ja muuntokelpoista sekä kaikki nykyajan talotekniset vaatimukset täyttävää toimistotilaa Innopoli 3:sta Otaniemen ja Tapiolan rajaavan Kehä l:n varrella. Kyseinen tila sijaitsee A-talossa. Ota yhteyttä ja sovi esittely, palvelumme on tilanhakijoille ilmainen.
Osoite
Vaisalantie 2 A, 02130 Espoo
Tilatyyppi
Toimistotilaa
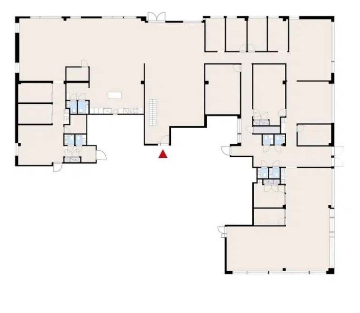
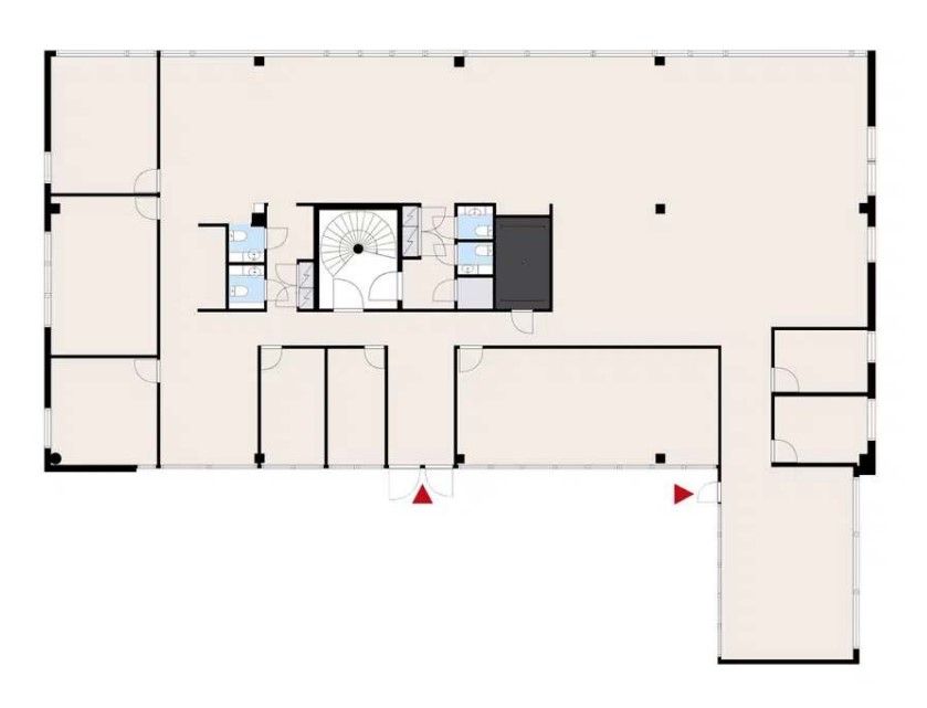
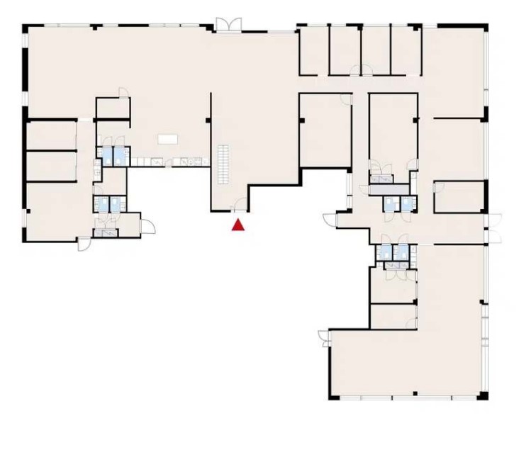
1380 m2
Tilajako
Jaettavissa
Pohjapiirros
Kiinteistö
Technopolis/Innopoli 3.
Sijainti
Otaniemen teknologiakylä/Kehä I/Tapiola.
Pysäköinti
Runsaasti p-tilaa omassa pysäköintihallissa ja pihalla.
Palvelut
Otaniemen ja Tapiolan palvelut.
Muuta
Aulapalvelu, kokous-/edustustilat, ravintola, hyvinvointipalveluita ym. Huom! Toimistotilojen sisäkuvat edustavat perustasoa ja ovat yleisluonteisia.
Vapautuu
Heti
Kerros
1-2
Energiatehokkuusluokka
Ei lain edellyttämää energiatodistusta
Näkyvällä paikalla
Jaettavissa
Hissi
Ota yhteyttä
Senaatin Notariaatti Oy LKV
Lämmittäjänkatu 4 A
FIN-00880 Helsinki
Tel:
Näytä puhelinnumero
+358 9 7745 100
Pyydä lisätietoa
