Vuokrataan toimistotilat - Helsinki
Vilhonvuorenkatu 12, Sörnäinen, 00500 Helsinki #10777312
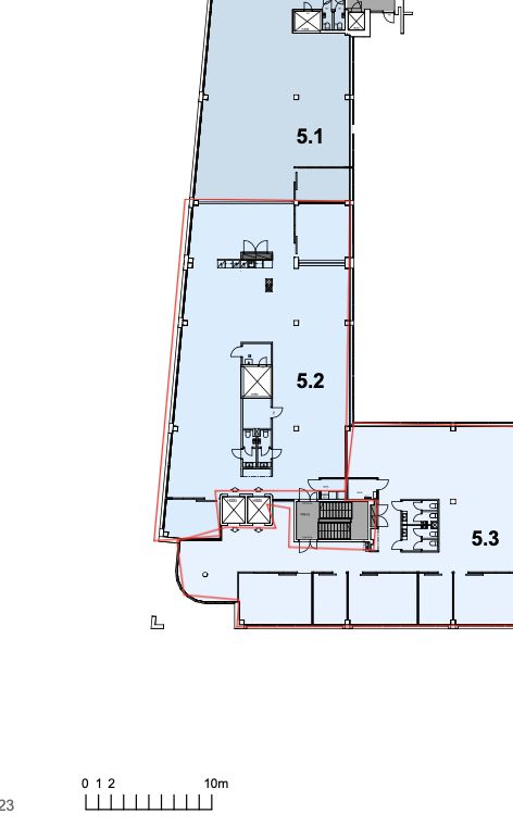
Kiinteistön viidennessä kerroksessa 315.5m2 toimisto vuokrattavana. Ohessa kuvia kiinteistön tiloista.
Täysin uudistettu, merihenkinen, täyden palvelun Kalasataman Kummeli Business Park palvelee erilaisten asiakkaiden tarpeita joustavasti. Erinomainen sijainti Sörnäisten, Kalasataman ja Suvilahden keskiössä, metro ja REDI ovat kävelymatkan päässä.
Lisätietoja numerosta 020 7290 710. Lisää kohteita osoitteessa www.premises.fi.
Energialuokka C2007.Kerros: 5
Osoite
Vilhonvuorenkatu 12, 00500 Helsinki
Tilatyyppi
Toimistotilaa
317,5 m2
Kulkuyhteydet
Hyvät julkiset liikenneyhteydet. Kävelymatkan päässä on Sörnäisten ja Kalasatan metrosemat sekä useiden bussi- ja raitiovaunulinjojen pysäkkejä.
Ota yhteyttä
CRE PREMISES
Puh. Näytä puhelinnumero 020 7290 710
Vantaankoskentie 14
01670 VANTAA
Pyydä lisätietoa
