Vuokrataan toimistotilat - Helsinki
Urho kekkosen katu 3-7, Kamppi, 00100 Helsinki #10777301
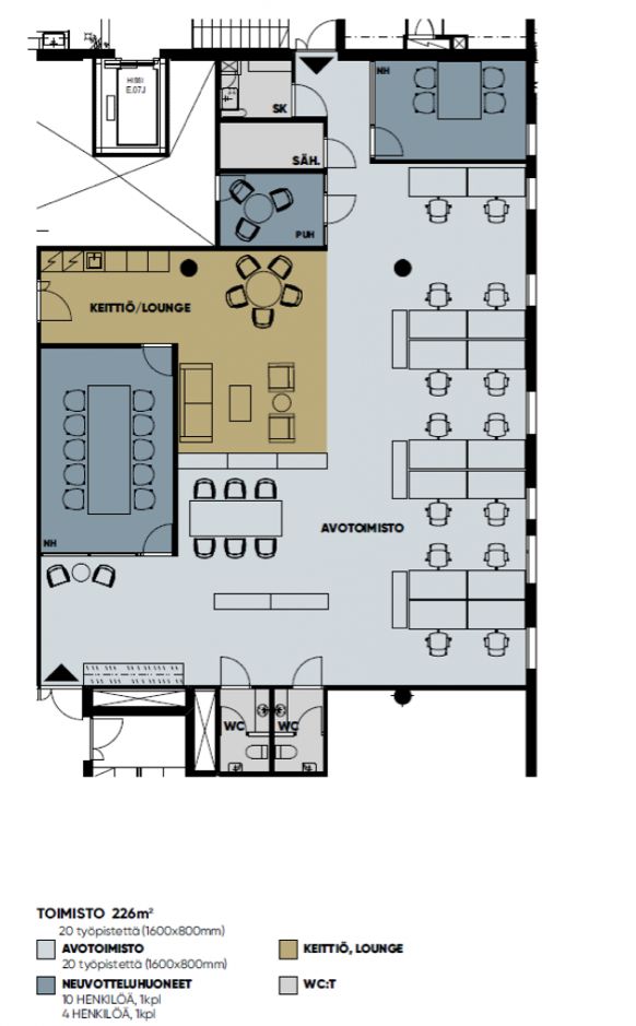
Näyttävä 226 m2 toimisto paraatipaikalla aivan Kampin ytimessä. Tila sijaitsee Kampintornin 6. kerroksessa.
Kiinteistöstä on suora kulkuyhteys Kampin keskukseen ja kiinteistö on erinomaisten liikenneyhteyksien ääressä.
Lisätiedot: 020 7290 710, lisää kohteita www.premises.fi
Kohteella ei ole lain edellyttämää energiatodistusta tai energialuokka ei tiedossa.Kerros: 6
Osoite
Urho kekkosen katu 3-7, 00100 Helsinki
Tilatyyppi
Toimistotilaa
226 m2
Kulkuyhteydet
Metroasema 200m
Raitiovaunu 100m
Bussipysäkki 100m
Rautatieasema 700m
Lentoasema 19,9km
Raitiovaunu 100m
Bussipysäkki 100m
Rautatieasema 700m
Lentoasema 19,9km
Ota yhteyttä
CRE PREMISES
Puh. Näytä puhelinnumero 020 7290 710
Vantaankoskentie 14
01670 VANTAA
Pyydä lisätietoa
