Vuokrataan toimistotilat - Helsinki
Aku Korhosentie 8-10, Pohjois-Haaga, 00440 Helsinki #10777294
Vuokrataan moderni toimistotila erittäin hyvällä sekä näkyvällä sijainnilla Kehä I:n ja Hämeenlinnan-väylän risteyksessä.
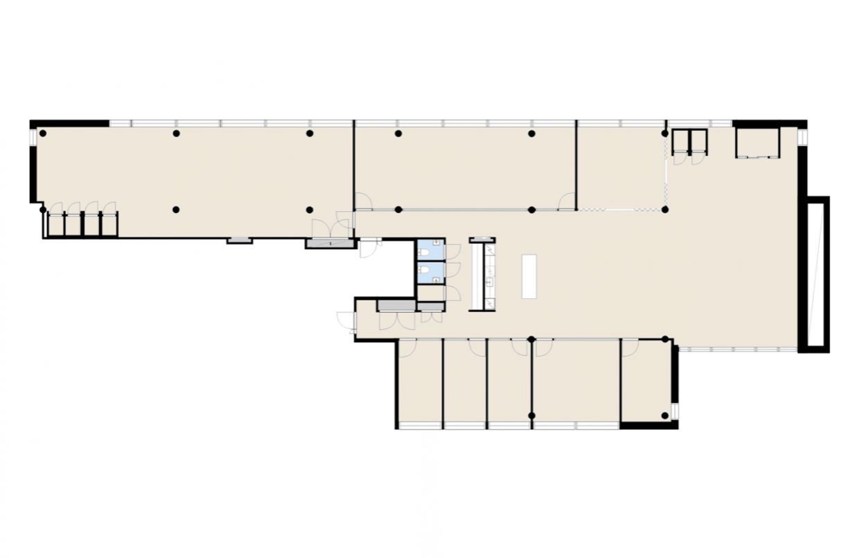
Sijoittuessasi Estradiin olet avainpaikalla, nykyaikaisessa toimistotalossa. Estradin toimistotilat mukautuvat yrityksen tarpeiden mukaisesti. Kiinteistössä on kehittynyt ilmanvaihtojärjestelmä, kattoon sijoitetut säteilytekniikkaa hyödyntävät lämmitys- ja jäähdytyspaneelit, jotka muokkaavat sisäilmasta optimaalisen. Estradissa on 159 autopaikkaa.
Kävelyetäisyydellä Kaaren palvelut, kuten uudistunut ja laadukas ravintolamaailma.
Lisätietoja numerosta 020 7290 710. Lisää kohteita osoitteessa www.premises.fi.
Kohteella ei ole lain edellyttämää energiatodistusta tai energialuokka ei tiedossa.Kerros: 4
CRE PREMISES
Puh. Näytä puhelinnumero 020 7290 710
Vantaankoskentie 14
01670 VANTAA
