Vuokrataan liiketilat - Helsinki
Pursimiehenkatu 29-31, Punavuori, 00150 Helsinki #10777203
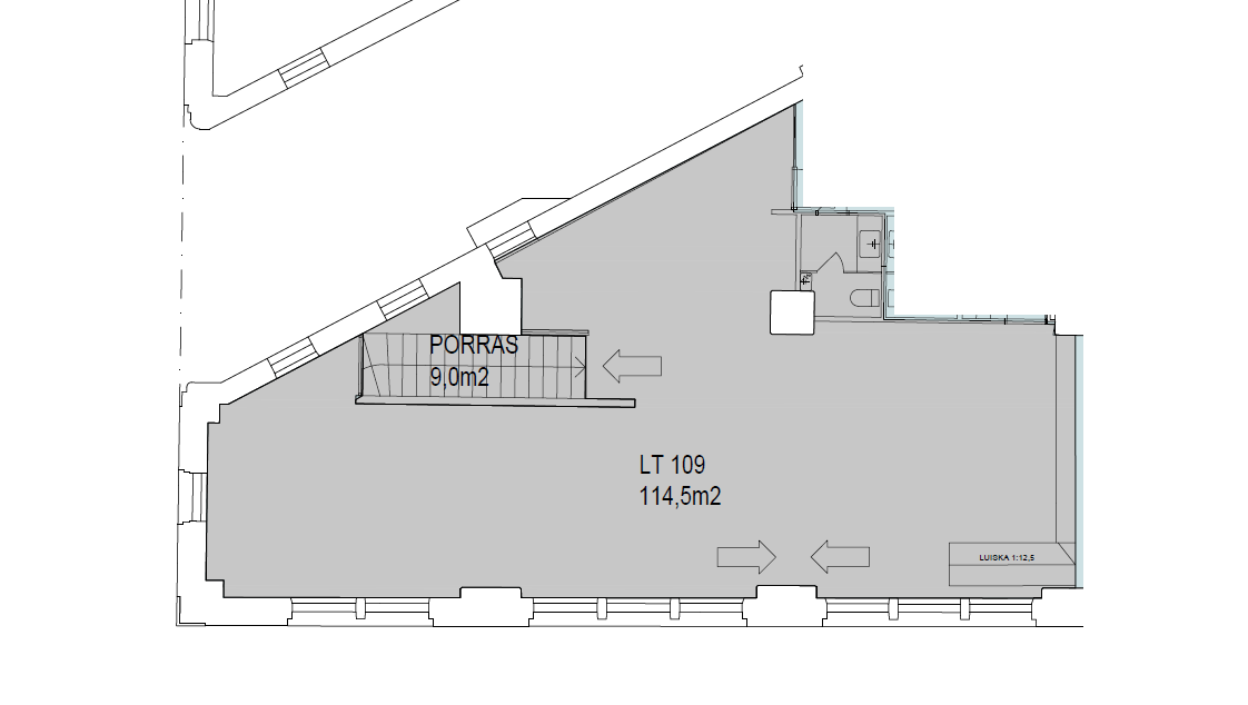
Erittäin persoonallinen, mieleenpainuva ja tavallisesta poikkeava 114 m2 toimitila tunnelmallisessa Merikorttelissa
Tömä tila ei sovi kaikille mutta personallista tilaa hakevalle voisi olla juuri se oikea!
Tietyntyyppiseen liiketilatarpeeseen (vaikka tatuointistudio, erikoiskampaamo, hyvinvointi tmv.) tai persoonalliseksi toimistoksi voisi olla hyvä.
Sisäpihan ajokäytävän varrelta ovesta sisään ja portaat ylös niin tilassa ollaan. Ei siis millään muotoa esteetön tila.
Kuten kuvista näkyy niin kesken on ja loppuun saatetaan seuraavalle käyttäjälle. Keittiö vielä puuttuu kokonaan mutta se tulee WC:n vastaiselle seinälle.
Pääosa ikkunoista Telakkakadulle päin.
Hyvällä suunnittelulla ja toteutuksella tästä saa oikealle käyttäjälle ihan huikean tilan.
Merikorttelissa oli 1900-luvun alussa vain joukko yksikerroksisia puisia asuintaloja kunnes Suomen Kaapelitehdas rakennutti paikalle tämän tehdaskiinteistön (vaiheittain 1919-1934) jossa nykyään valmistuu kaapelin sijaan mm. elämyksiä, pitsaa, luovia ajatuksia, koodia, markkinointia, mediaa, myyntiä yms.
Croisette on uusi ja innovatiivinen toimitilojen välitysyritys Suomessa. Meillä on vahva halu auttaa teitä löytämään paras toimitilaratkaisu mahdollisimman vaivattomasti.
Huomaathan, että kaikki vapaat ja vapautuvat tilat ovat kauttamme saatavilla. Osa tiloista on hiljaisessa markkinoinnissa, mutta ottamalla meihin yhteyttä saat nekin tietoosi.
Palvelumme on tilanhakijoille täysin maksutonta.
Croisette Real Estate Partner
Erottajankatu 5 A 6, 00130 Helsinki
Näytä puhelinnumero
+358 400 585 857
Croisette Vuokraus
Näytä puhelinnumero
+358400585857
