Vuokrataan toimistotilat - Helsinki
Teollisuuskatu 33, Vallila, 00510 Helsinki #10777116
Vallila33 Business Parkin 3. kerroksessa on vapaana modernia ja viihtyisää toimitilaa, joka voidaan muunnella joustavasti yrityksesi tarpeiden ja suunnitelmien mukaiseksi.
Osoite
Teollisuuskatu 33, 00510 Helsinki
Tilatyyppi
Toimistotilaa
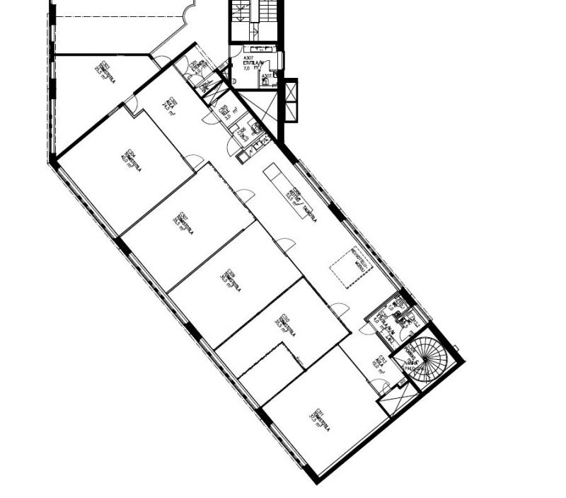
35 - 310 m2
Tilajako
Jaettavissa
Pohjapiirros
Virtuaaliesittely
Kiinteistö
Vallila33 Business Parkin 3. kerroksen tiloissa on vapaana viisi erillistä toimistohuonetta, kooltaan 35-40 m2, sekä yhteiskäyttöalue, josta löytyy keittiö, wc-tilat sekä neuvottelumoduli. Tilatarpeestasi riippuen voit vuokrata joko yksittäisen huoneen tai koko toimitilan, joka on kooltaan noin 310 m2.
Pysäköinti
Kiinteistössä on lämmin autohalli, josta kiinteistössä toimivat yritykset voivat vuokrata autopaikkoja.
Asiakkaille paikkoja löytyy kadunvarsista sekä läheisestä Aimo-Parkista.
Asiakkaille paikkoja löytyy kadunvarsista sekä läheisestä Aimo-Parkista.
Palvelut
Jo Teollisuuskadulta sisään astuessa Vallila33 Business Park vakuuttaa. Ystävällinen henkilökunta jatkaa tunnelmaa toivottamalla sinut tervetulleeksi.
Bertta 33-ravintolassa aloitat päiväsi maistuvalla aamiaistarjoilulla ja alakerran tunnelmallisesta joogasalista saat rauhoittavaa energiaa. Jos taas kaipaat vauhtia ja voimaa, huippuluokan laitteilla varustettu CrossFit-sali haastaa sinut ylittämään itsesi. Saunaosaston pehmeät aamulöylyt sekä suihku- ja pukeutumistilat ovat työmatkapyöräilijöiden ja treenaajien ensimmäinen etappi ennen työpäivän alkua.
Neuvottelukeskuksen korkeat ja avarat neuvotteluhuoneet taipuvat pitkiin palavereihin ja kiperiinkin neuvotteluihin.
Yhä ylempiin kerroksiin kiivetessä talo tarjoilee 6.000 m² laadukasta ja dynaamista toimitilaa kasvavan ja kehittyvän kaupungin näköalapaikalta. Näetkö siellä myös itsesi ja yrityksesi?
Bertta 33-ravintolassa aloitat päiväsi maistuvalla aamiaistarjoilulla ja alakerran tunnelmallisesta joogasalista saat rauhoittavaa energiaa. Jos taas kaipaat vauhtia ja voimaa, huippuluokan laitteilla varustettu CrossFit-sali haastaa sinut ylittämään itsesi. Saunaosaston pehmeät aamulöylyt sekä suihku- ja pukeutumistilat ovat työmatkapyöräilijöiden ja treenaajien ensimmäinen etappi ennen työpäivän alkua.
Neuvottelukeskuksen korkeat ja avarat neuvotteluhuoneet taipuvat pitkiin palavereihin ja kiperiinkin neuvotteluihin.
Yhä ylempiin kerroksiin kiivetessä talo tarjoilee 6.000 m² laadukasta ja dynaamista toimitilaa kasvavan ja kehittyvän kaupungin näköalapaikalta. Näetkö siellä myös itsesi ja yrityksesi?
Kulkuyhteydet
Kulkuyhteydet alueelle ovat erinomaiset. Alueen kehityksen myötä rakennetaan sekä uusia kevyen liikenteen väyliä, että täydennetään julkisen liikenteen yhteyksiä. Vallilan läpi kulkevat useat keskeiset bussi- ja raitiovaunulinjat. Linjan 9 pysäkki on aivan Teollisuuskatu 33:n kiinteistön edustalla. Kävelymatkan päässä sijaitsevat vilkasliikenteinen Mäkelänkatu ja Aleksis Kiven katu. Pasilan juna-asema (800m) sijaitsee kävelyetäisyydellä.
Omalla autolla kulkeville kiinteistössä on parkkitilaa kellarin paikoitustasoilla. Autoilijan reitit keskusta-alueen pääsisääntuloväylille, kuten Lahdenväylälle, Tuusulanväylälle ja Itäväylälle ovat erityisen hyvät.
Omalla autolla kulkeville kiinteistössä on parkkitilaa kellarin paikoitustasoilla. Autoilijan reitit keskusta-alueen pääsisääntuloväylille, kuten Lahdenväylälle, Tuusulanväylälle ja Itäväylälle ovat erityisen hyvät.
Vuokralaisia
Kiinteistössä on vuokralla mm. Säästöpankkiliiton pääkonttori, vuokranantaja Onvest-konsernin oma pääkonttori sekä Onvestin tytäryhtiö Feonin pääkonttori.
Muuta
Tutustu kotisivuihimme:
https://vallila33.fi/
https://vallila33.fi/
Lisätietoa saneerauksista
Kiinteistön peruskorjauksen ensimmäinen vaihe valmistui 2017/2018, toinen vaihe 04/2019 ja kolmas vaihe 03/2020.
Vapaat toimistotilat voidaan räätälöidä vuokralaisten toiveiden ja tarpeiden mukaan.
Vapaat toimistotilat voidaan räätälöidä vuokralaisten toiveiden ja tarpeiden mukaan.
Vapautuu
Heti
Rakennusvuosi
1990
Saneerausvuosi
2020
Kerros
3 / 7
Näkyvällä paikalla
Jaettavissa
Hissi
Ota yhteyttä
Pyydä lisätietoa
