Vuokrataan liiketilat - Helsinki
Porkkalankatu 7, Ruoholahti, 00180 Helsinki #10777074
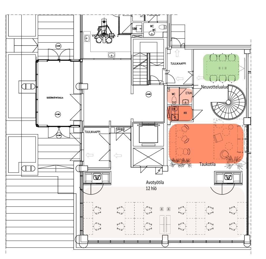
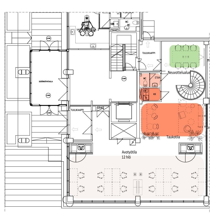
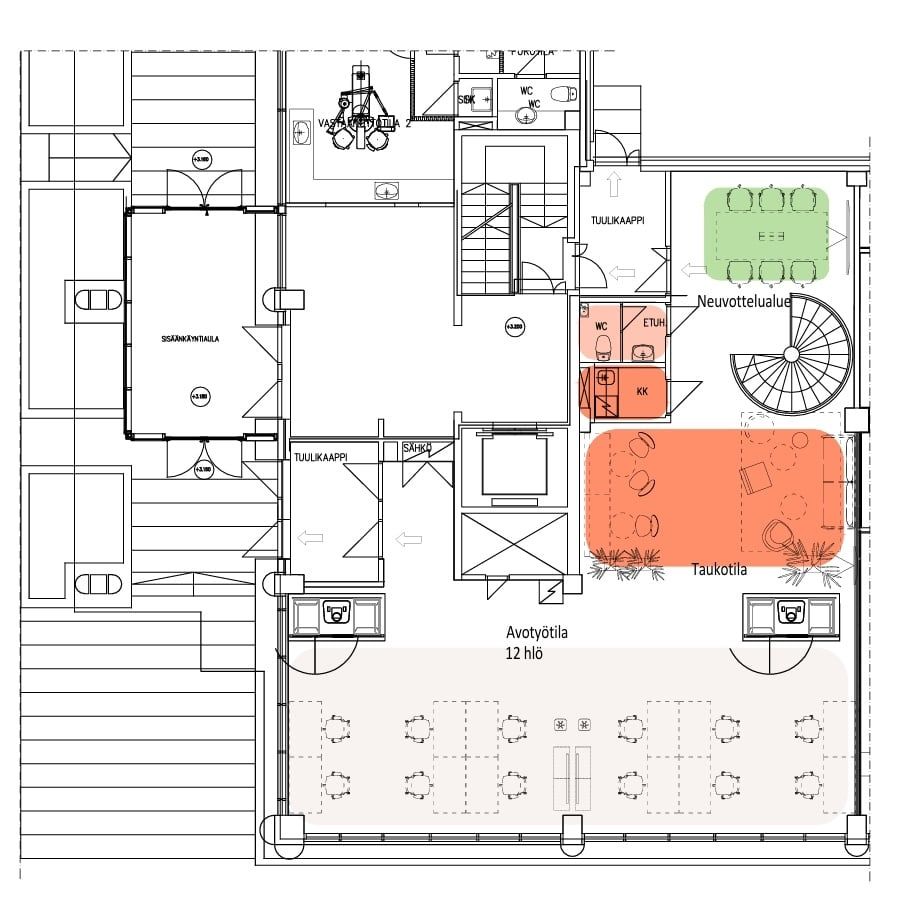
Tämä ensimmäisen kerroksen tila sopii moneen eri tarkoitukseen. Tilaa voi hyödyntää toimistona, sowroomina tai vaikkapa liiketilana. Tila tullaan myös muokkaamaan tulevan käyttäjän tarpeisiin.
Erinomaiset toimitilat Ruoholahden liikekeskuksessa tarjoavat loistavia mahdollisuuksia. Kaikki oleellinen, kuten julkiset kulkuvälineet, lounasravintolat ja Ruoholahden kauppakeskus, sijaitsevat lähellä. Talolla on myös myönnetty BREEAM IN-Use -ympäristösertifikaatti, mikä osoittaa sen ympäristöystävällisyyttä. Talon julkisivu on myös korjattu vuonna 2022.
Me Croisettella autamme teitä löytämään teille parhaat tilat! Olemme puolueettomia asiantuntijoita ja tunnemme toimitilamarkkinat, talot sekä tilat vankalla kokemuksella. Meillä on välityksessä kaikki toimitilat ja tiedämme niiden alustavat vuokratasot.
Tehtävämme on tehdä toimitilahaustanne onnistunut ja helppo. Saamme palkkiomme kiinteistönomistajalta, joten sinulle palvelumme on täysin maksuton.
Hissi
Croisette Real Estate Partner
Erottajankatu 5 A 6, 00130 Helsinki
Näytä puhelinnumero
+358 400 585 857
Croisette Vuokraus
Näytä puhelinnumero
+358400585857
