Vuokrataan toimistotilat - Helsinki
Eliel Saarisen Tie 2, Pohjois-Haaga, 00400 Helsinki #10776836
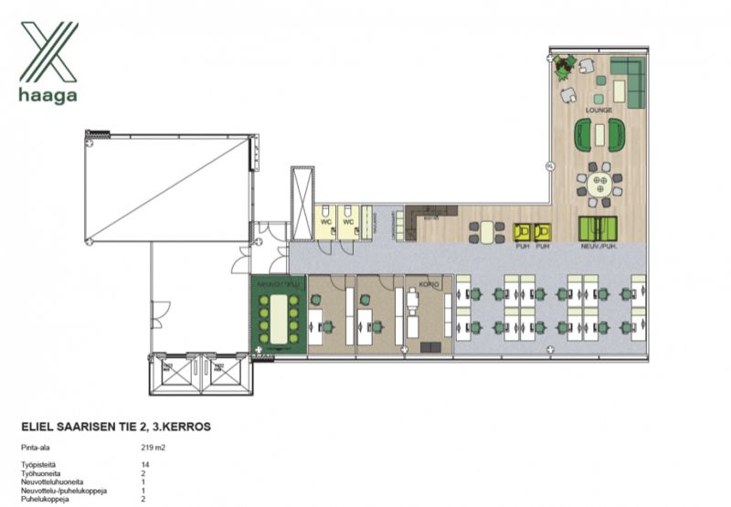
Vuokrataan valoisa ja moderni toimistotila kiinteistön 3. kerroksessa. Tila remontoidaan vuokralaisen tarpeisiin sopivaksi. Työhuoneita tehtävissä tilaan enemmän kuin pohjakuvan mallissa.
Eliel Saarisen tie 2 on nykyaikainen, valoisia ja muuntojoustavia toimitiloja tarjoava toimistokiinteistö. Kiinteistössä on lounasravintola sekä kuntosali vuokralaisten käytössä.
Kiinteistö sijaitsee näkyvällä paikalla Hämeenlinnan väylän varrella. Kuljetpa töihin mistäpäin pääkaupunkiseutua tahansa, tähän kohteeseen on sen keskeisen sijainnin vuoksi aina helppo tulla. Pihalta löytyy pysäköintipaikkoja autoileville. Pirkkolantiellä ja Hämeenlinnanväylällä sijaitsevat pysäkit ovat parin minuutin kävelymatkan päässä. Lisäksi tuleva raidejokeri tulee kulkemaan aivan talon kulmalta.
Lisätietoja soita 020 730 4530 tai info@repoint.fi. Palvelumme on tilanhakijalle ilmainen.
Repoint Toimitilat Oy
Itälahdenkatu 22 B, 00210 Helsinki
Näytä puhelinnumero
020 730 4530
Lisätietoja soita Näytä puhelinnumero 020 730 4530 tai info@repoint.fi
https://repoint.fi/