Vuokrataan toimistotilat - Helsinki
Mannerheimintie 15B, Töölö, 00260 Helsinki #10776682
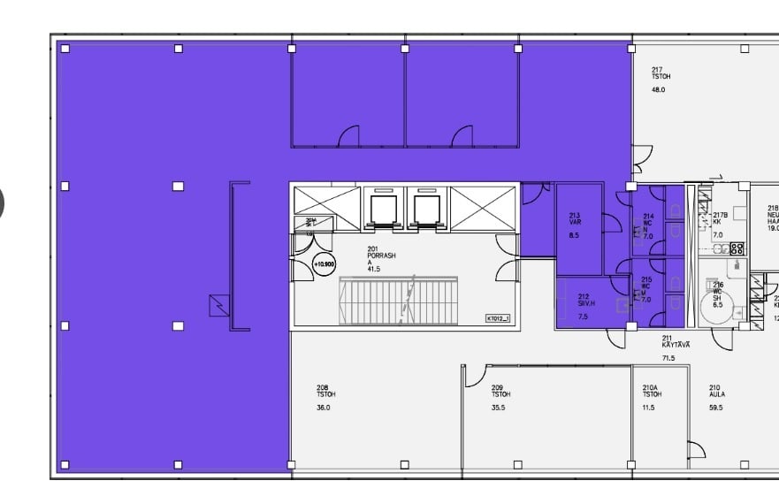
Monenlaiseen toimistotarpeeseen taipuva 343-neliöinen tila B-talon toisessa kerroksessa.
Upeat isot ikkunat ja avarat maisemat.
Tilan pohjaratkaisu ja pinnat suunnitellaan yhdessä tulevan käyttäjän tarpeiden mukaan.
Todella uniikilla sijainnilla, Oopperatalon edessä sijaitseva Mannerheimintie 15 koostuu kahdesta rakennuksesta eli A ja B. Näistä A on entinen Töölön Sokeritehtaan toimistotalo ja B myöhemmin rakennettu, lasinen pääkonttorirakennus. Siksi nimi Sakkaroosi kokonaisuudelle on annettu.
Sokeritehtaan punatiilinen toimistotalo rakennettiin vuonna 1951 ja on ainoa jäljellä oleva Sokeritehtaanaikainen rakennus. Tunnistettavan rakennuksen historia näkyy edelleen Sokerityttö-veistoksena, joka sijaitsee talon edustalla. Mannerheimintie 15 B on rakennettu vuonna 1974 ja se on tasokas toimistotalo. Kiinteistöissä on kaukokylmäjäähdytykset ja erikseen vuokrattavia autopaikkoja pihalla ja hallissa. Vieraspysäköinti ulkona ja tarvittaessa viereinen Kisahallin laaja parkki-alue auttaa myös autoilevia jos saapuvia on enemmänkin.
Croisette on uusi ja innovatiivinen toimitilojen välitysyritys Suomessa. Meillä on vahva halu auttaa teitä löytämään paras toimitilaratkaisu mahdollisimman vaivattomasti.
Huomaathan, että kaikki vapaat ja vapautuvat tilat ovat kauttamme saatavilla. Osa tiloista on hiljaisessa markkinoinnissa, mutta ottamalla meihin yhteyttä saat nekin tietoosi.
Palvelumme on tilanhakijoille täysin maksutonta.
Hissi
Croisette Real Estate Partner
Erottajankatu 5 A 6, 00130 Helsinki
Näytä puhelinnumero
+358 400 585 857
Croisette Vuokraus
Näytä puhelinnumero
+358400585857
