Vuokrataan - Helsinki
Pohjoinen Rautatiekatu 25, Kamppi, 00100 Helsinki #10776514
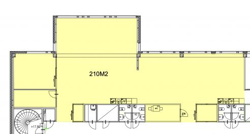
Vuokrattavana 2.kerroksen toimisto ( 210 m2) Kampin kupeesta. Keskeisellä paikalla sijaitseva toimistokiinteistö on täysin remontoidu vuosina 2016-2017. Valoisan ja viihtyisän rakennuksen kellarissa on pyöräparkki pukuhuoneineen ja varastotiloja. Ensimmäisen kerroksen neuvottelu- ja kokoustilat ovat kaikkien vuokralaisten yhteiskäytössä.
Kysy lisää sp: heli.reinberg@rhg.fi.
Osoite
Pohjoinen Rautatiekatu 25, 00100 Helsinki
Vapautuu
Kysy
Huoneiden lukumäärä
1
Energiatehokkuusluokka
Ei lain edellyttämää energiatodistusta
Ota yhteyttä
RHG Real Estate
Hämeenkatu 2 B20, 20500 Turku
Näytä puhelinnumero
020 734 4020
Heli Reinberg
Näytä puhelinnumero
040 647 4900
Pyydä lisätietoa
