Vuokrataan toimistotilat - Espoo
Lars Sonckin Kaari 16, Leppävaara, 02600 Espoo #10776304
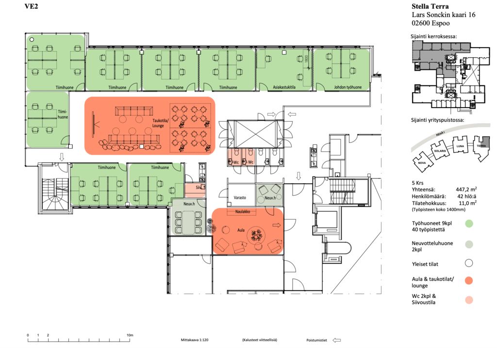
Toimistotilaa Leppävaarassa Stella Business Parkissa.
Tämä 447,2m2 toimistotila sijaitsee Terra-talon 5. kerroksessa.
Stella Business Park sijaitsee Espoon Leppävaarassa, ja se koostuu neljästä talosta. Kiinteistö sijaitsee Kehä I:n välittömässä läheisyydessä, ja se on helposti saavutettavissa sekä omalla autolla että julkisella liikenteellä. Stellassa on lounasravintola, aulapalvelu, auditorio, vuokrattavia kokoustiloja ja kuntosali. Pysäköintipaikkoja on mahdollista vuokrata.
Kysy lisää numerosta 044 723 4700 tai info@bref.fi. Palvelumme on tilanhakijoille ilmainen.
Hissi
Bureau Real Estate Finland Oy
Lars Sonckin kaari 16, 02600 Espoo
Näytä puhelinnumero
0447234700
Bureau Real Estate Finland Oy
https://www.bref.fi