Vuokrataan toimistotilat - Espoo
Mänkimiehentie 4, Kauklahti, 02780 Espoo #10776192
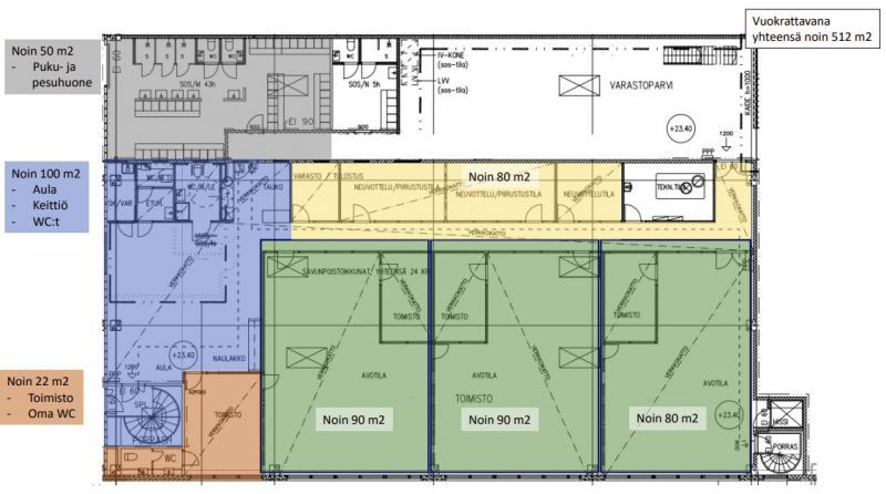
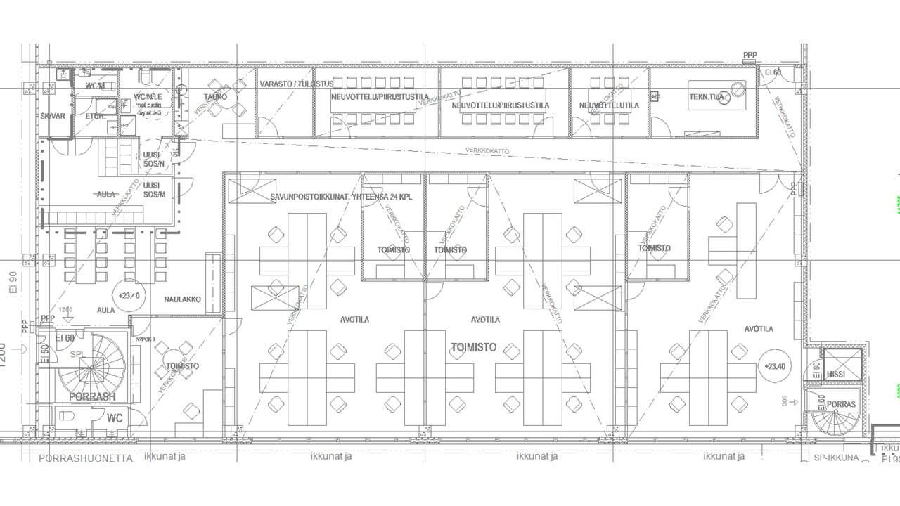
Vuokrataan huippusiistiä ja nykyaikaista toimistotilaa Kauklahdessa. Toimisto sijaitsee logistiikka/varastorakennuksen 2. kerroksessa. Tila voidaan jakaa kolmelle n.100m2 käyttäjälle, jolloin sosiaalitilat ja keittiö olisivat yhteiskäytössä.
Osoite
Mänkimiehentie 4, 02780 Espoo
Tilatyyppi
Toimistotilaa
432 m2
Tilajako
Jaettavissa
100m2 x 3
Pohjapiirros
Sijainti
Espoon länsiosassa Kauklahden teollisuusalueella.
Kulkuyhteydet
Hyvät liikenneyhteydet Kehä III pitkin kaikille pääväylille.
Vuokralaisia
Samassa kiinteistössä toimii myös konevuokraamo ja talotekniikka-alan yritys.
Vapautuu
Heti
Kerros
2
Jaettavissa
Lastauslaituri
Ota yhteyttä
Senaatin Notariaatti Oy LKV
Lämmittäjänkatu 4 A
FIN-00880 Helsinki
Tel:
Näytä puhelinnumero
+358 9 7745 100
Pyydä lisätietoa
