Vuokrataan toimistotilat - Helsinki
Pursimiehenkatu 29-31/Perämiehenkatu 12, Punavuori, 00150 Helsinki #10776185
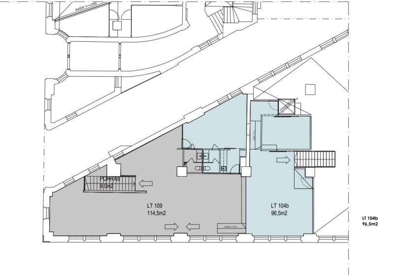
Vuokrattavana 1. kerroksen hyvässä kunnossa olevaa valoisaa toimistotilaa.
Osoite
Pursimiehenkatu 29-31/Perämiehenkatu 12, 00150 Helsinki
Tilatyyppi
Toimistotilaa
114,5 m2
Tila soveltuu
Parturi- ja kampaamo
Kiinteistö
Vuokrattavana 1. kerroksen hyvässä kunnossa olevaa valoisaa, viihtyisää toimistotilaa. Tilaan on omat portaat suoraan kadulta. Tila soveltuu parturi-kampaamo tai showroom-käyttöön.
Sijainti
Punavuori, Helsinki
Pysäköinti
Kiinteistön parkkihallissa.
Palvelut
-Ravintoloita
-Kaffaroastery paahtimo-kahvila
-Päivittäistavarakauppa
-Kaffaroastery paahtimo-kahvila
-Päivittäistavarakauppa
Kulkuyhteydet
-Raitiovaunu
-Bussi
-Metro
-Oma auto
-Bussi
-Metro
-Oma auto
Vapautuu
Heti
Kerros
1
Energiatehokkuusluokka
Ei lain edellyttämää energiatodistusta
Näkyvällä paikalla
Hissi
Ota yhteyttä
REALIUM OY LKV
Tammasaarenkatu 1, 00180 Helsinki
Vaihde:
Näytä puhelinnumero
010 326 346
Tuomo Mäkelä
tuomo.makela@realium.fi
p.
Näytä puhelinnumero
044 050 1158
Joel Keto
joel.keto@realium.fi
p.
Näytä puhelinnumero
045 317 0330
KAIKKI TILAVAIHTOEHDOT KERRALLA!
SOITA - MEILAA JA TILAA NÄYTTÖ!
Ilmainen palvelu tilanhakijoille.
Kartoitamme parhaat tilavaihtoehdot.
Kaikki kohteet eivät ole netissä.
Pyydä lisätietoa
