Vuokrataan toimistotilat - Helsinki
Hermannin Rantatie 8, Kalasatama, 00580 Helsinki #10776140
Modernia toimistotilaa Rantatie Business Parkista, Helsingin Kalasatamasta.
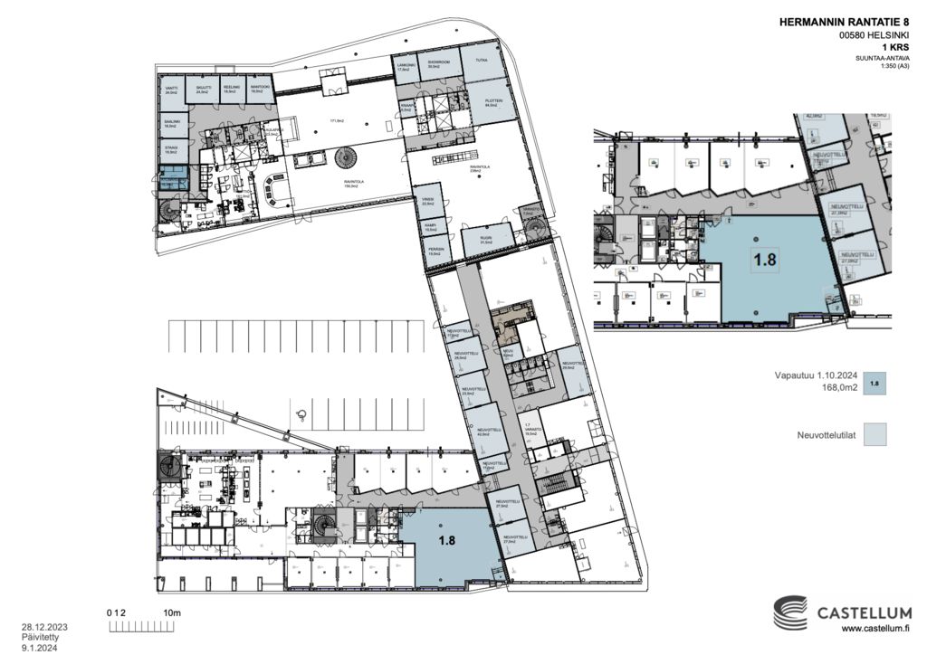
Tämä 168m2 valoisa avotoimistotila sijaitsee Loikka-talon katutasossa. Tilaan oma sisäänkäynti myös suoraan kadun puolelta. Tilan läheisyydessä sijaitsee ravintola ja neuvottelutilat. Metro ja REDI ovat kävelymatkan päässä. Kuvat ovat yleiskuvia kiinteistön tiloista.
Rantatie Business Park on moderni ja tyylikäs kokonaisuus Kalasataman kehittyvällä alueella. Toimitilat ovat helposti muunneltavissa vuokralaisen tarpeiden mukaan. Kiinteistössä on tarjolla monipuoliset palvelut, kuten aulapalvelu, siivous, vartointi, kokoustilat, remontti- ja sisustussuunnittelupalvelu, lounasravintola, kahvio sekä juhla- ja cateringpalvelut.
Loikka-talo valmistui syyskuussa 2019. Sen kerroskoot ovat 980 m2- 1500 m2. Kiinteistö rakennettiin laadukkaista materiaaleista ja näyttävistä yksityiskohdista. Sitä suunnitellessa on otettu huomioon mm. ympäristöystävällisyys. Ylimmässä kerroksessa on neuvottelutilat, upea kattoterassi sekä viherkatto.
Kysy lisää numerosta 044 723 4700 tai info@bref.fi. Palvelumme on tilanhakijoille ilmainen.
Hissi
Bureau Real Estate Finland Oy
Lars Sonckin kaari 16, 02600 Espoo
Näytä puhelinnumero
0447234700
Bureau Real Estate Finland Oy
https://www.bref.fi