Vuokrataan liiketilat - Helsinki
Eteläranta 18, Kaartinkaupunki, 00130 Helsinki #10776111
Liiketila Vanhaa kauppahallia vastapäätä turistivirtojen äärellä.
Osoite
Eteläranta 18, 00130 Helsinki
Tilatyyppi
Liiketilaa
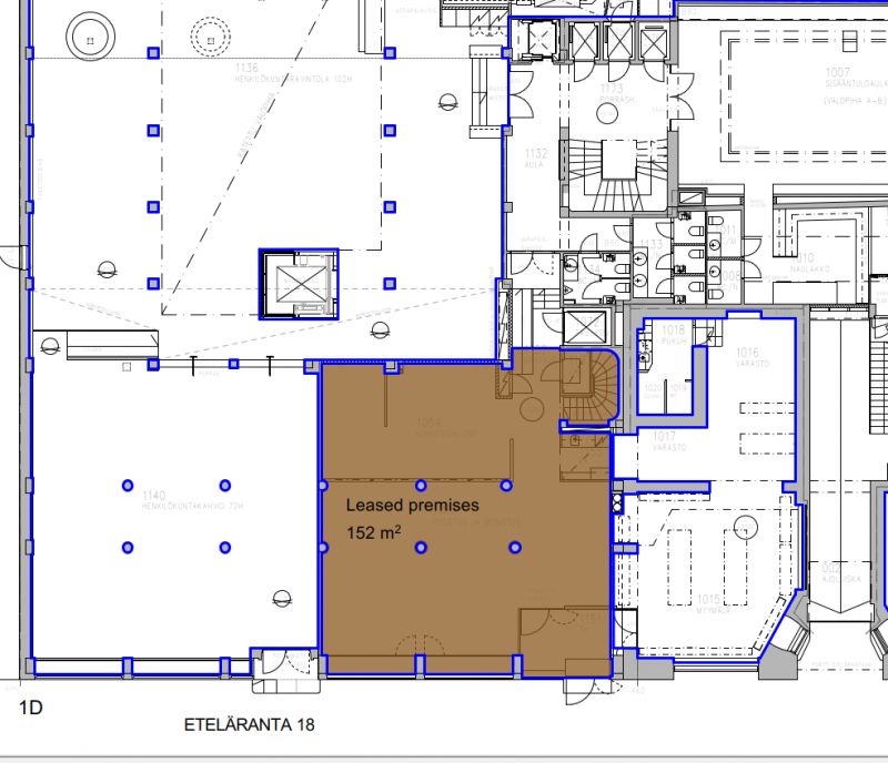
152 m2
Pohjapiirros
Tila soveltuu
Kahvila, studio/ateljé, koulutus, parturi- ja kampaamo, popup
Kiinteistö
Eteläesplanadi 2 sijaitsee erinomaisella paikalla, Kauppatorin ja Esplanadin puiston laidalla. Rakennuksessa yhdistyvät modernit toimisto- ja liiketilat ja historialliset rakennuselementit, jotka luovat kiinteistöön arvokkaan ja valoisan tunnelman.
Edustava liiketilatila sijaitsee kiinteistön katutasossa Etelärannan puolella. Tilassa on suuri ikkuna, josta avautuu näkymät Kauppatorin ja Etelärannan merelliseen ympäristöön. Upeasti saneerattu historiallinen kiinteistö tarjoaa liiketoiminnallesi sen ansaitsemat puitteet sijainnilla, johon niin työntekijöiden, asiakkaiden kuin kumppanienkin on helppo saapua.
Edustava liiketilatila sijaitsee kiinteistön katutasossa Etelärannan puolella. Tilassa on suuri ikkuna, josta avautuu näkymät Kauppatorin ja Etelärannan merelliseen ympäristöön. Upeasti saneerattu historiallinen kiinteistö tarjoaa liiketoiminnallesi sen ansaitsemat puitteet sijainnilla, johon niin työntekijöiden, asiakkaiden kuin kumppanienkin on helppo saapua.
Sijainti
Kiinteistö sijaitsee erinomaisten liikenneyhteyksien varrella noin 10 minuutin kävelymatkan päässä Helsingin Rautatieasemalta ja reilun viiden minuutin päässä Helsingin Yliopiston metropysäkiltä. Tien toisella puolen sijaitsee Kauppatori, kulman takana Esplanadin puisto. Kiinteistön edestä löytyy lähin raitiovaunupysäkki.
Keskeisen sijainnin ansiosta kiinteistön lähettyviltä löytyy laaja valikoima Helsingin parhaita luonasravintoloita, kahviloita ja erikoisliikkeitä. Tässä sijainnissa kaikki palvelut ovat käden ulottuvilla, lyhyen kävelymatkan päässä. Eläväinen Kauppatori ja Esplanadin puisto tuovat asiakasvirrat palvelujesi äärelle.
Keskeisen sijainnin ansiosta kiinteistön lähettyviltä löytyy laaja valikoima Helsingin parhaita luonasravintoloita, kahviloita ja erikoisliikkeitä. Tässä sijainnissa kaikki palvelut ovat käden ulottuvilla, lyhyen kävelymatkan päässä. Eläväinen Kauppatori ja Esplanadin puisto tuovat asiakasvirrat palvelujesi äärelle.
Vapautuu
Heti
Kerros
1 / 7
Katutasossa
Näkyvällä paikalla
Ota yhteyttä
Pyydä lisätietoa
