Vuokrataan toimistotilat - Helsinki
Höyläämötie 14, Pitäjänmäki, 00380 Helsinki #10776047
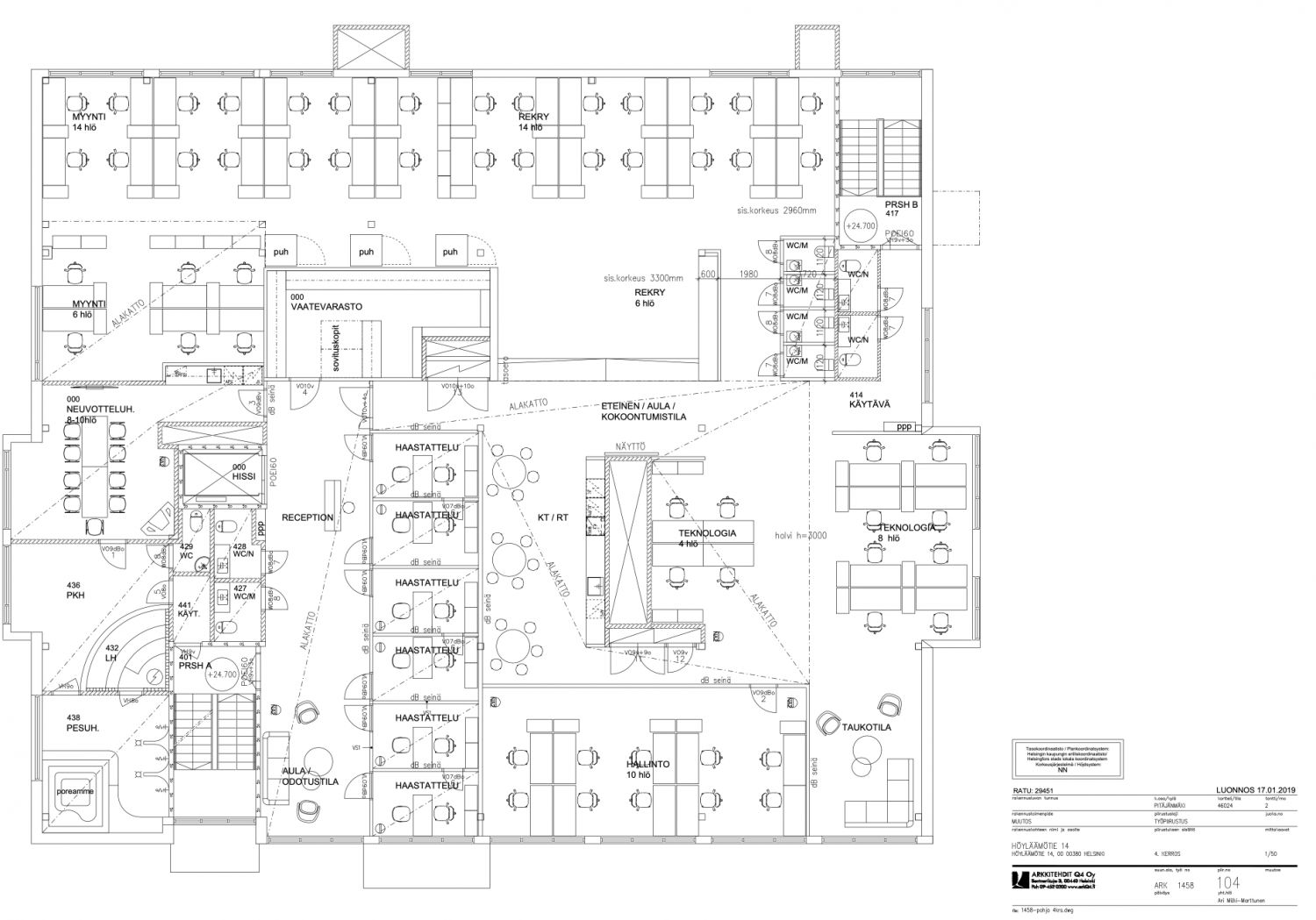
Vuokrataan peruskorjattua, siistiä 627 m2 toimistotilaa hyvällä sijainnilla Pitäjänmäessä. Kohteessa on suoritettu peruskorjaushanke. Yhdistettävissä 3. kerroksen 200 m2 tilan kanssa. Tällöin kulku kerrosten välillä hissillä tai portaita. Ohessa havainnollistavia kuvia kiinteistön tiloista.
Peruskorjaushankkeen aikana modernisoitu talotekniikka.
Vuokralaisella mahdollisuus vaikuttaa toimitilan pintamateriaaleihin. Mahdollista toteuttaa tilaratkaisut huone-, toimisto- tai kombiratkaisuina vuokaralaisten tarpeiden mukaisesti.
Alueella useita lounasravintoloita.
Lisätietoja numerosta 020 7290 710. Lisää kohteita osoitteessa www.premises.fi.
Kohteella ei ole lain edellyttämää energiatodistusta tai energialuokka ei tiedossa.Kerros: 4
CRE PREMISES
Puh. Näytä puhelinnumero 020 7290 710
Vantaankoskentie 14
01670 VANTAA
