Vuokrataan toimistotilat - Helsinki
Osmontie 38, Käpylä, 00610 Helsinki #10776033
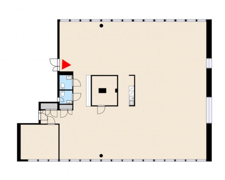
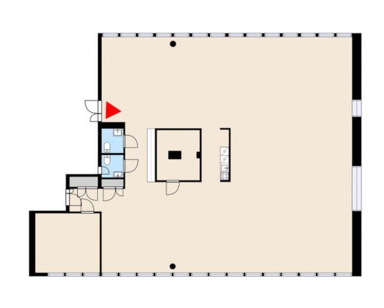
Vuokrataan uudehko ja valoisa avotoimistotila Käpylästä. Kiinteistön kellarikerroksessa siistit pukuhuoneet ja suihkutilat. Kiinteistöstä vuokrattavissa myös varastotilaa. Vuokrattaviin neilöihin lisätään osuus yhteiskäyttöisistä tiloista. Yhdistettävissä 372m2 tilaan, jolloin kokonaisneliöt yhteensä 708m2. Ohessa havainnollistavia kuvia.
Toimistotalo Osmontie 38 sijaitsee keskeisellä paikalla Helsingin Käpylässä, erinomaisten kulkuyhteyksien varrella. Työmatka taittuu kätevästi niin junalla, bussilla kuin raitiovaunullakin. Käpylän juna-aseman asemalaiturille on suora kävelytieyhteys. Lyhyen kävelymatkan päästä löytyvät mm. ruokakauppa sekä kuntosali.
6-kerroksisen toimistotalon valoisat ja avarat tilat voidaan toteuttaa niin avo- kuin huonetoimistoiksi tai näiden yhdistelmäksi. Suunnittelussa on myös kiinnitetty erityistä huomiota energia-tehokkaisiin ratkaisuihin ja kiinteistöteknisiin järjestelmiin energianero -konseptin mukaisesti.
Lisätietoja 020 7290 710. Lisää kohteita www.premises.fi
Energialuokka B.Kerros: 2
CRE PREMISES
Puh. Näytä puhelinnumero 020 7290 710
Vantaankoskentie 14
01670 VANTAA
