Vuokrataan toimistotilat - Helsinki
Pursimiehenkatu 29-31, Punavuori, 00150 Helsinki #10775832
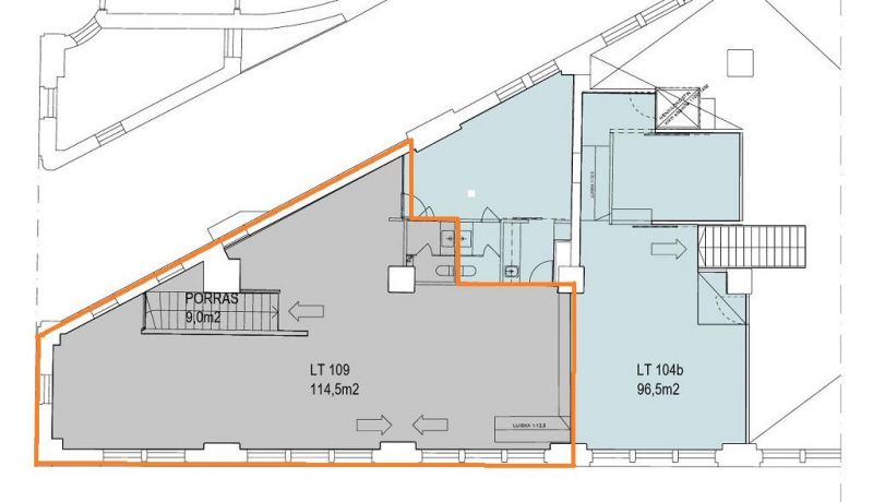
Vuokrataan Merikorttelista kompakti 114,5m2 toimisto kiinteistön 2. kerroksesta. Oma keittiö ja WC. Tila remontoidaan seuraavalle vuokralaiselle. Persoonallinen toimisto Bob's Laundryn yläpuolella. Oma sisäänkäynti porttikongista, ei hissiä.
Erinomainen sijainti Punavuoressa, suositussa dynaamisessa ja yhteisöllisessä Merikorttelissa! Alueella paljon laadukkaita ravintoloita ja kahviloita. Pysäköintitilaa vuokrattavissa korttelin omasta parkkihallista sekä läheisistä pysäköintilaitoksista.
Lisätietoja soita 020 730 4530 tai info@repoint.fi. Palvelumme on tilanhakijalle ilmainen.
Hissi
Repoint Toimitilat Oy
Itälahdenkatu 22 B, 00210 Helsinki
Näytä puhelinnumero
020 730 4530
Lisätietoja soita Näytä puhelinnumero 020 730 4530 tai info@repoint.fi
https://repoint.fi/