Vuokrataan liiketilat - Helsinki
Ratavartijankatu 3, Pasila, 00520 Helsinki #10775740
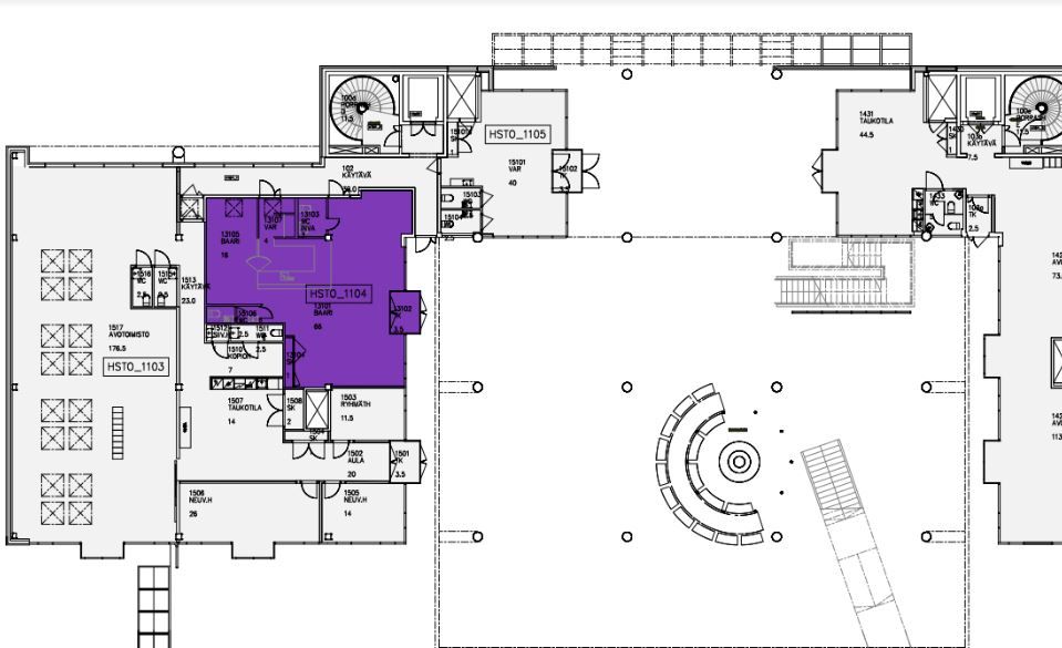
Vuokrataan sisäpihan liiketila joka soveltuu myös palvelutoimistoksi. keskeinen sijainti aivan Tripla liikekeskuksen vieressä. Ota yhteyttä ja sovi esittely. Vuokrauspalvelumme on tilanhakijoille maksuton. Puh. 09 7745 100.
Osoite
Ratavartijankatu 3, 00520 Helsinki
Tilatyyppi
Liiketilaa
100 m2
Pohjapiirros
Kiinteistö
Liike ja toimistotalo
Sijainti
Itä-Pasila
Ympäristö
Tripla 100m
Pysäköinti
Parkkihalli talon alla, johon myös asiakkailla vapaa pääsy.
Palvelut
Kaikki lähellä
Kulkuyhteydet
Juna, Bussi, Ratikka
Vapautuu
Heti
Energiatehokkuusluokka
Ei lain edellyttämää energiatodistusta
Katutasossa
Ota yhteyttä
Senaatin Notariaatti Oy LKV
Lämmittäjänkatu 4 A
FIN-00880 Helsinki
Tel:
Näytä puhelinnumero
+358 9 7745 100
Pyydä lisätietoa
