Vuokrataan toimistotilat - Helsinki
Valimo Center, Hiomotie 3, Pitäjänmäki, 00380 Helsinki #10775721
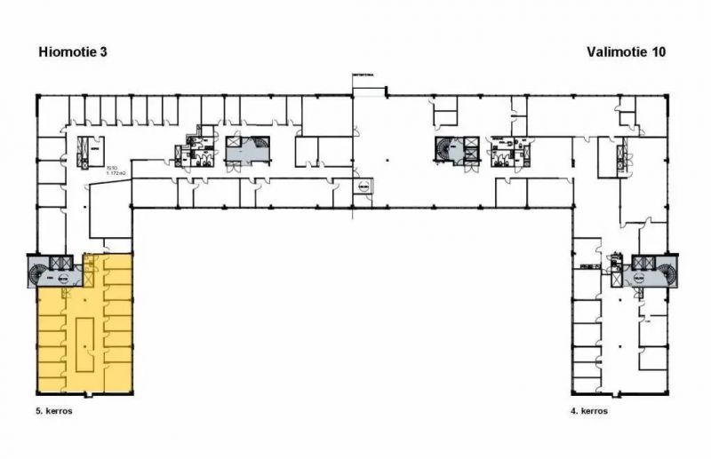
Siisti ja avoin 267,5 m² viidennessä kerroksessa, erinomaisten kulkuyhteyksien varrella Valimo Centerissä, Pitäjänmäessä.
Vuokralaisia palvelee Valimotie 13a:ssa sijaitseva aulapalvelu, josta hoituu myös postien vastaanotto, edelleenlähetys sekä pakettipalvelut. Samasta rakennuksesta löydät talon oman kuntosalin, jonne pääsee kulkuavaimella klo 5-21. Katutasossa runsaan lounaan arkipäivisin tarjoilee Ravintola Factory.
Rakennus sijaitsee keskeisellä paikalla pääkaupunkiseudulla. Juna, Jokerilinja sekä bussiyhteydet ovat talon vieressä. Valimon asemalle kävelee viidessä minuutissa ja keskustaan sekä lentokentälle on alle 20 minuutin ajomatka.
Näkyvällä paikalla
Hissi
ScanReal Oy LKV
Opus Business Park
Hitsaajankatu 24
00810 Helsinki
info@scanreal.fi
Puh:
Näytä puhelinnumero
020 730 8830
Sopivat toimitilat yhdellä otolla!
Kartoitamme toimitilatarpeesi ja etsimme yrityksellesi parhaiten sopivat vapaat toimitilat. Koska vuokranantajat maksavat palvelumme, on tämä yrityksellesi veloituksetonta.
OTA YHTEYTTÄ - SOVI NÄYTTÖ!
Kaikki kohteemme eivät ole netissä, kerro tilatarpeesi niin kartoitamme vaihtoehdot.
Palvelumme on tilanhakijalle ilmainen
