Vuokrataan toimistotilat - Helsinki
Rikhardinkatu 2, Kaartinkaupunki, 00130 Helsinki #10775701
Edustavaa toimistotilaa Kaartinkaupungista
Osoite
Rikhardinkatu 2, 00130 Helsinki
Tilatyyppi
Toimistotilaa
460 m2
Muuta
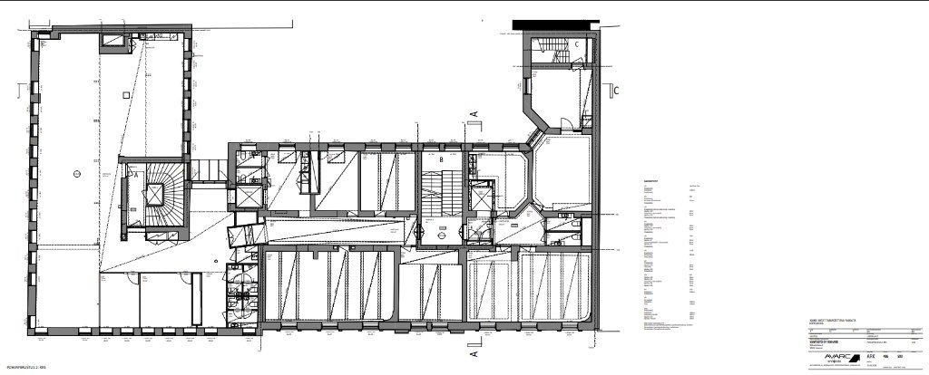
Vuokrataan hyväpohjainen 460m2 toimistotila tunnelmallisessa Rikhardinkatu 2:ssa. Valoisasta kulmatoimistosta on näkymät Kasarmikadulle ja Rikhardinkadulle. Tilassa on neuvottelutila ja avotilaa sekä keittiö ja wc-tilat. Toimisto on siistikuntoinen, ja se on myös mahdollista päivittää tulevan vuokralaisen toiveiden mukaiseksi.
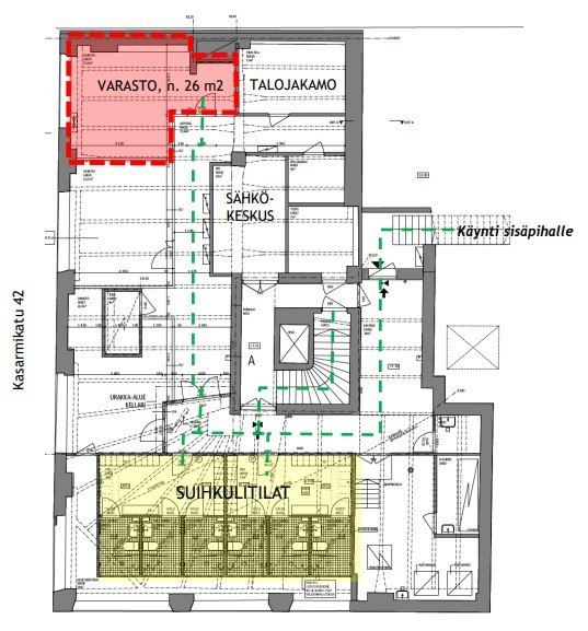
Hyvin hoidetun 2000-luvulla saneeratun kiinteistön vuokalaisten yhteiskäytössä on suihkutilat miehille ja naisille. Erikseen on vuokrattavissa n. 26m2 varasto.
Kiinteistön sijainti Esplanadin ja Kasarmitorin kupeessa Helsingin liike-elämän ytimessä tarjoaa kaupungin parhaimmat palvelut käden ulottuville. Rautatie-, bussi- ja metroasemalle n. 700m. Auton käyttäjiä palvelee Erottajan Aimo Park, josta kiinteistölle on n. 70m.
Tervetuloa tutustumaan, varaathan välittäjältä oman esittelyaikasi. Kysy meiltä myös muita sopivia vaihtoehtoja - palvelumme on vuokralaiselle veloitukseton.
Hyvin hoidetun 2000-luvulla saneeratun kiinteistön vuokalaisten yhteiskäytössä on suihkutilat miehille ja naisille. Erikseen on vuokrattavissa n. 26m2 varasto.
Kiinteistön sijainti Esplanadin ja Kasarmitorin kupeessa Helsingin liike-elämän ytimessä tarjoaa kaupungin parhaimmat palvelut käden ulottuville. Rautatie-, bussi- ja metroasemalle n. 700m. Auton käyttäjiä palvelee Erottajan Aimo Park, josta kiinteistölle on n. 70m.
Tervetuloa tutustumaan, varaathan välittäjältä oman esittelyaikasi. Kysy meiltä myös muita sopivia vaihtoehtoja - palvelumme on vuokralaiselle veloitukseton.
Vapautuu
Kysy
Rakennusvuosi
1890
Kerros
2
Ota yhteyttä
Tuloskiinteistöt Oy
Rikhardinkatu 2 B 5, 00130 Helsinki
Näytä puhelinnumero
(09) 6841 620
Nina Meyke
Commercial Real Estate Advisor
Näytä puhelinnumero
+358 50 466 1519
Jorma Ryynänen
Commercial Real Estate Advisor LKV, LVV
Näytä puhelinnumero
+358 40 708 4064
Pyydä lisätietoa
