Vuokrataan toimistotilat - Helsinki
Televisiokatu 1, Pasila, 00240 Helsinki #10775667
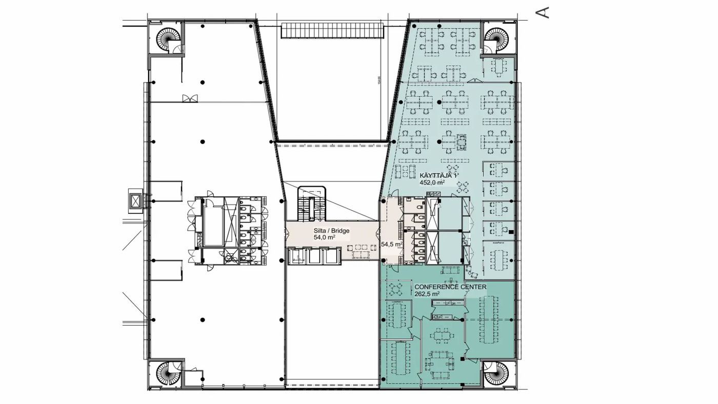
Vuokrataan modernia toimistotilaa 1600m2.
Televisiokatu 1 tarjoaa kattavat palvelut yrityksellesi, loistavien kulkuyhteyksien varrella. Palveluihin kuuluu muun muassa aulapalvelut, kokous- ja edustuspalvelut, lounge sekä saunatilat, kuntosali, pyöräparkki. Näiden lisäksi saman katon alta löytyy myös kiinteistön vuokralaisille tarjolla olevat kattavat työterveyspalvelut. Kiinteistön omien palveluiden lisäksi kauppakeskus Triplan tarjonta on lyhyen kävelymatkan päässä.
Kiinteistön keskeisen sijainnin ansiosta se on helppo saavuttaa niin julkisilla kulkuvälineillä, kuin omalla autolla. Kiinteistössä on vuokralaisille autopaikkoja, -latauspisteitä sekä autopesulapalveut. Lähimmälle juna-asemalle Ilmalaan kävelee alle 10 minuutissa ja raitiovaunupysäkille kävelee vain 5 minuuttia.
Energialuokka B
Lisätiedot ja esittely kohteesta 0400891057
Lisää kohteita www.premises.fi
CRE PREMISES
Puh. Näytä puhelinnumero 020 7290 710
Vantaankoskentie 14
01670 VANTAA
