Vuokrataan toimistotilat - Tampere
Finlaysoninkatu 7, Finlayson, 33210 Tampere #10775581
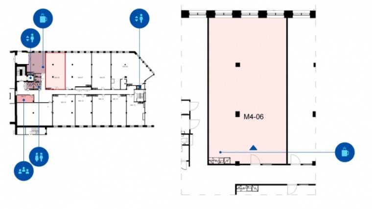
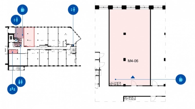
Avotoimisto Seelannin pientoimistokerroksessa, aivan yhteiskäyttöisten sosiaalitilojen tuntumassa. Avokonttorissa kommunikointi on tehokasta. Kerroksessa on yhteiskäytössä oleva neuvotteluhuone.
Perinteikäs Finlaysonin alue on vireä liike-elämän, vapaa-ajan ja kulttuuritapahtumien keskus. Alueen useat ravintolat ja kahvilat tarjoavat monipuolisen lounas- ja kahvilatarjonnan. Finlaysonin alueen vanhat tehdasrakennukset tarjoavat yrityksellesi uniikin toimintaympäristön Tammerkosken maisemissa. Alueen rakennukset ovat BREEAM In-Use -ympäristösertifioituja. Finlaysonin alue on helposti saavutettavissa omalla autolla, julkisin kulkuvälinein ja kevyellä liikenteellä. Keskustori ja rautatieasema ovat kävelymatkan etäisyydellä.
Croisette on uusi ja innovatiivinen toimitilojen välitysyritys Suomessa. Meillä on vahva halu auttaa teitä löytämään paras toimitilaratkaisu mahdollisimman vaivattomasti.
Huomaathan, että kaikki vapaat ja vapautuvat tilat ovat kauttamme saatavilla. Osa tiloista on hiljaisessa markkinoinnissa, mutta ottamalla meihin yhteyttä saat nekin tietoosi.
Palvelumme on tilanhakijoille täysin maksutonta.
Hissi
Croisette Real Estate Partner
Erottajankatu 5 A 6, 00130 Helsinki
Näytä puhelinnumero
+358 400 585 857
Jenni Lampinen
Näytä puhelinnumero
+358405287396
