Vuokrataan toimistotilat - Helsinki
Pohjoinen Rautatienkatu 25, Keskusta, 00100 Helsinki #10775559
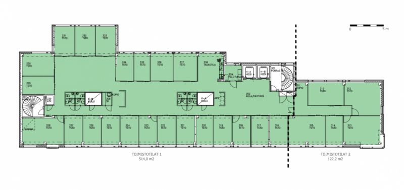
Vuokrataan hyväkuntoista toimistotilaa Kampista. Tilat remontoidaan valmiiksi seuraavan vuokralaisen toiveiden ja tarpeiden mukaan. Tiloihin mahdollista toteuttaa avotoimistoa ja huoneita.
PR25:n kiinteistöstä Pohjoiselta Rautatiekadulta löytyy viihtyisää toimistotilaa Kampin kupeesta. Toimistokerrokset ovat selkeitä ja helposti muokattavissa.
Kellarikerroksissa vuokralaisia palvelee erittäin tilava pyöräkellari pukuhuoneineen. Lisäksi kiinteistöstä löytyy kuntosali, varastotilaa sekä pysäköintihalli 15:lle autolle. Ensimmäisen kerroksen neuvottelu- ja kokoustilat ovat kaikkien vuokralaisten yhteiskäytössä.
Kiinteistön sijainti metron ja Kampin bussiterminaalin tuntumassa pyöräilyn pääväylä Baanan varrella on erinomainen.
Lisätietoja soita 020 730 4530 tai info@repoint.fi. Palvelumme on tilanhakijalle ilmainen.
Repoint Toimitilat Oy
Itälahdenkatu 22 B, 00210 Helsinki
Näytä puhelinnumero
020 730 4530
Lisätietoja soita Näytä puhelinnumero 020 730 4530 tai info@repoint.fi
https://repoint.fi/