Vuokrataan toimistotilat - Tampere
Eteläpuisto 2 C, Kaakinmaa, 33200 Tampere #10775496
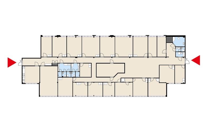
Tämä viidennen kerroksen toimisto tarjoaa siistit ja remontoidut työskentelytilat teille. Tilan ikkunat ovat korkeat, joten valoa on runsaasti. Tilassa on monipuolisesti erikokoisia työhuoneita, joissa onnistuu työskentely itsekseen tai tiimin kanssa. Tilassa on omat wc:t sekä keittiöllinen taukohuone.
Klingendahl, Eteläpuisto 2 sijaitsee Tampereen Kaakinmaalla. Tämä vanha teollisuusrakennus toimi vielä 1950-luvulla Fabian Klinhendahlin perustaman, lankaa valmistavan Klingendahl Oy:n toimipaikkana. Klingendahlin punatiilisen ulkoasun lisäksi toinen näyttävä piirre on sen sisäpihalla sijaitseva 81-metrinen savupiippu.
Croisette on uusi ja innovatiivinen toimitilojen välitysyritys Suomessa. Meillä on vahva halu auttaa teitä löytämään paras toimitilaratkaisu mahdollisimman vaivattomasti.
Huomaathan, että kaikki vapaat ja vapautuvat tilat ovat kauttamme saatavilla. Osa tiloista on hiljaisessa markkinoinnissa, mutta ottamalla meihin yhteyttä saat nekin tietoosi.
Palvelumme on tilanhakijoille täysin maksutonta.
Hissi
Croisette Real Estate Partner
Erottajankatu 5 A 6, 00130 Helsinki
Näytä puhelinnumero
+358 400 585 857
Jenni Lampinen
Näytä puhelinnumero
+358405287396
