Vuokrataan toimistotilat - Helsinki
Hitsaajankatu 4, Herttoniemi, 00810 Helsinki #10775448
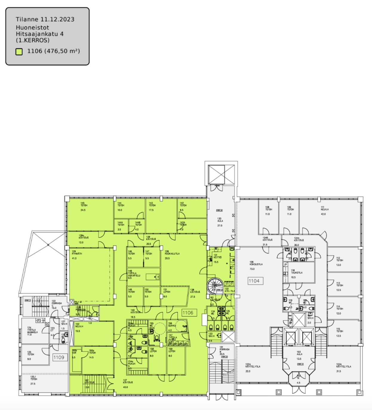
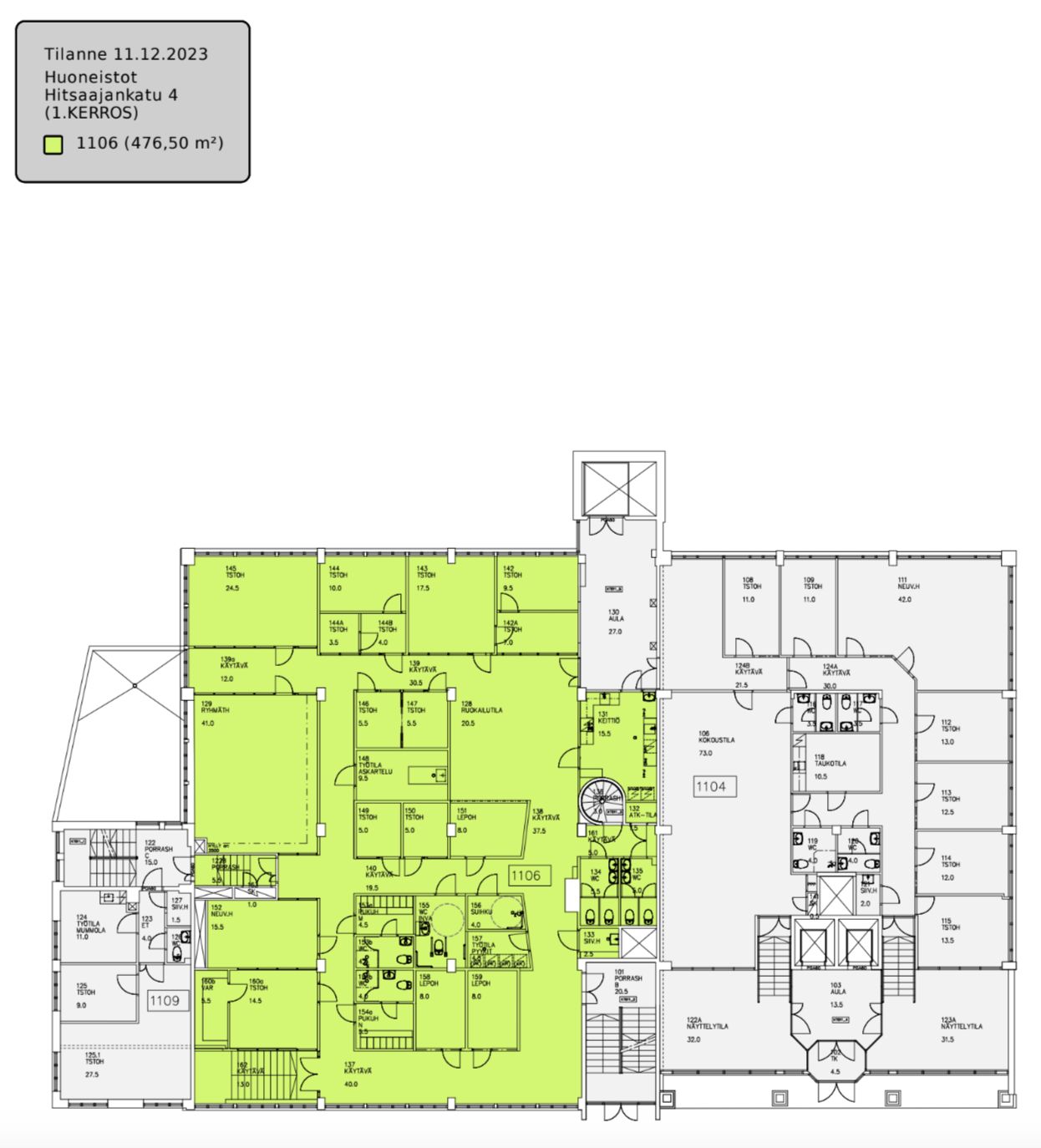
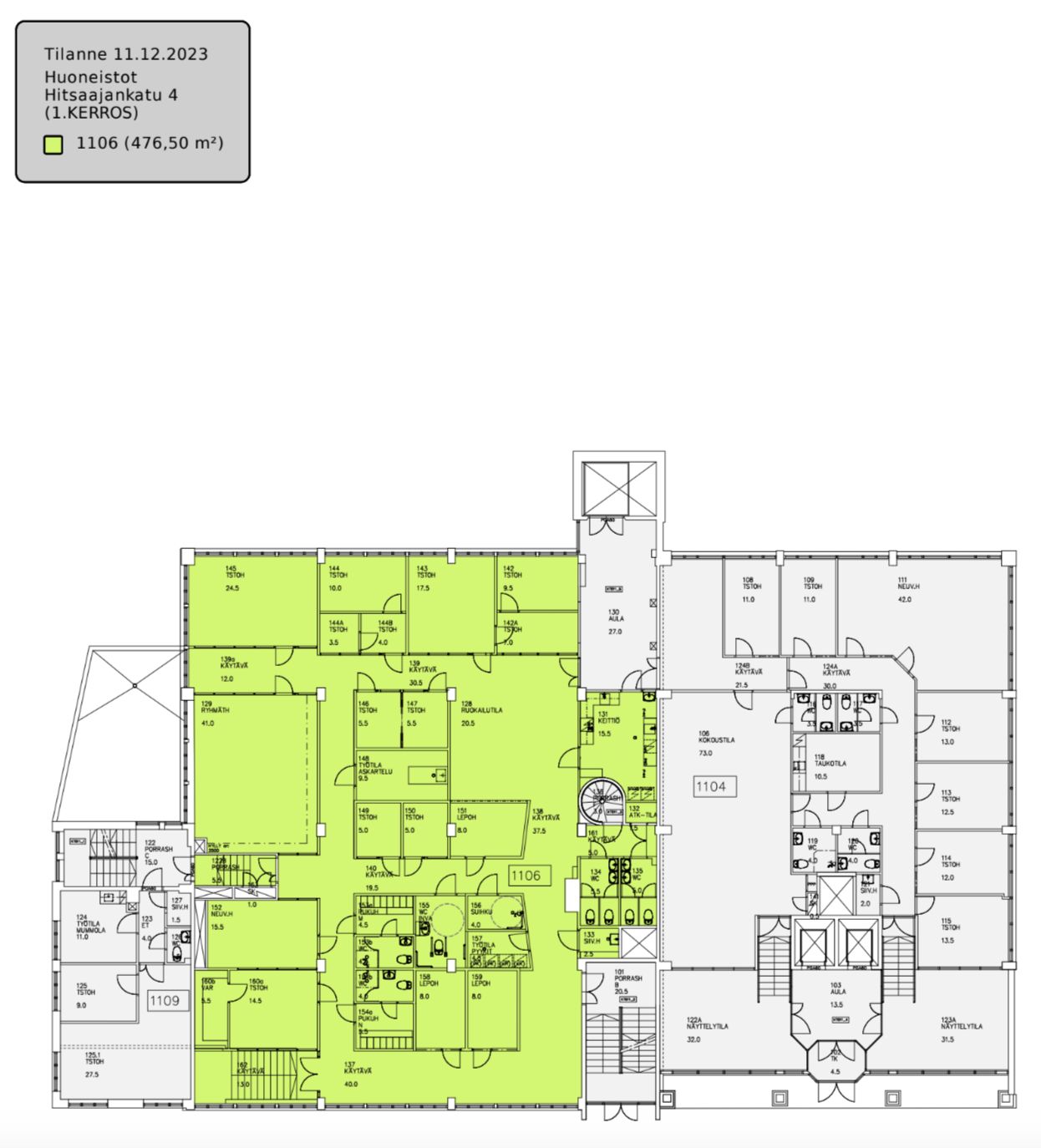
Vuokrattavissa siisti 1. kerroksen 476.5 m2 toimistotila. Kiinteistöstä on vuokrattavissa myös varastotilaa.
Hitsaajankatu 4 on toimitilakiinteistö erinomaisella sijainnilla Herttoniemessä. Kiinteistössä on helposti muunneltavaa toimisto- ja varastotilaa. Tilat mukautuvat vuokralaisen tarpeiden mukaan.
Lisätiedot: 020 7290 710, sekä lisää kohteita osoitteesta: premises.fi
Kohteella ei ole lain edellyttämää energiatodistusta tai energialuokka ei tiedossa.Kerros: 1
Osoite
Hitsaajankatu 4, 00810 Helsinki
Tilatyyppi
Toimistotilaa
476,5 m2
Kulkuyhteydet
Hyvät liikenneyhteydet. Bussi-, raitiovaunu- ja metropysäkit kävelymatkan etäisyydellä.
Ota yhteyttä
CRE PREMISES
Puh. Näytä puhelinnumero 020 7290 710
Vantaankoskentie 14
01670 VANTAA
Pyydä lisätietoa
