Vuokrataan liiketilat - Helsinki
Atlantinkatu 4, Jätkäsaari, 00220 Helsinki #10774991
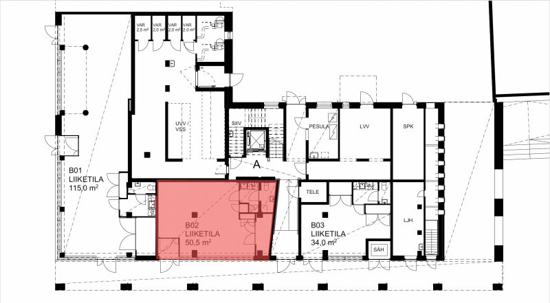
Jätkäsaaressa 50,5 m² liiketila asuintalon kivijalassa.
Osoite
Atlantinkatu 4, 00220 Helsinki
Tilatyyppi
Liiketilaa
50,5 m2
Pohjapiirros
Kiinteistö
Atlantinkatu 4 on Helsingin Jätkäsaaressa v. 2023 valmistunut asuintalo, jonka kivijalassa on vuokrattavaa liiketilaa. Jätkäsaari on nopeasti kehittyvää aluetta ja kohteen sijainti on erinomainen. Lähimmät bussi- ja raitiovaunupysäkit ovat noin 100m päässä.
Tila ei sovellu ravintola- tai kahvilakäyttöön.
Tila ei sovellu ravintola- tai kahvilakäyttöön.
Vapautuu
Heti
Rakennusvuosi
2023
Kerros
1
Energiatehokkuusluokka
Ei lain edellyttämää energiatodistusta
Katutasossa
Ota yhteyttä
ScanReal Oy LKV
Opus Business Park
Hitsaajankatu 24
00810 Helsinki
info@scanreal.fi
Puh:
Näytä puhelinnumero
020 730 8830
Sopivat toimitilat yhdellä otolla!
Kartoitamme toimitilatarpeesi ja etsimme yrityksellesi parhaiten sopivat vapaat toimitilat. Koska vuokranantajat maksavat palvelumme, on tämä yrityksellesi veloituksetonta.
OTA YHTEYTTÄ - SOVI NÄYTTÖ!
Kaikki kohteemme eivät ole netissä, kerro tilatarpeesi niin kartoitamme vaihtoehdot.
Palvelumme on tilanhakijalle ilmainen
Pyydä lisätietoa
