Vuokrataan liiketilat - Jyväskylä
Schaumanin Puistotie 10, Lutakko, 40100 Jyväskylä #10774949
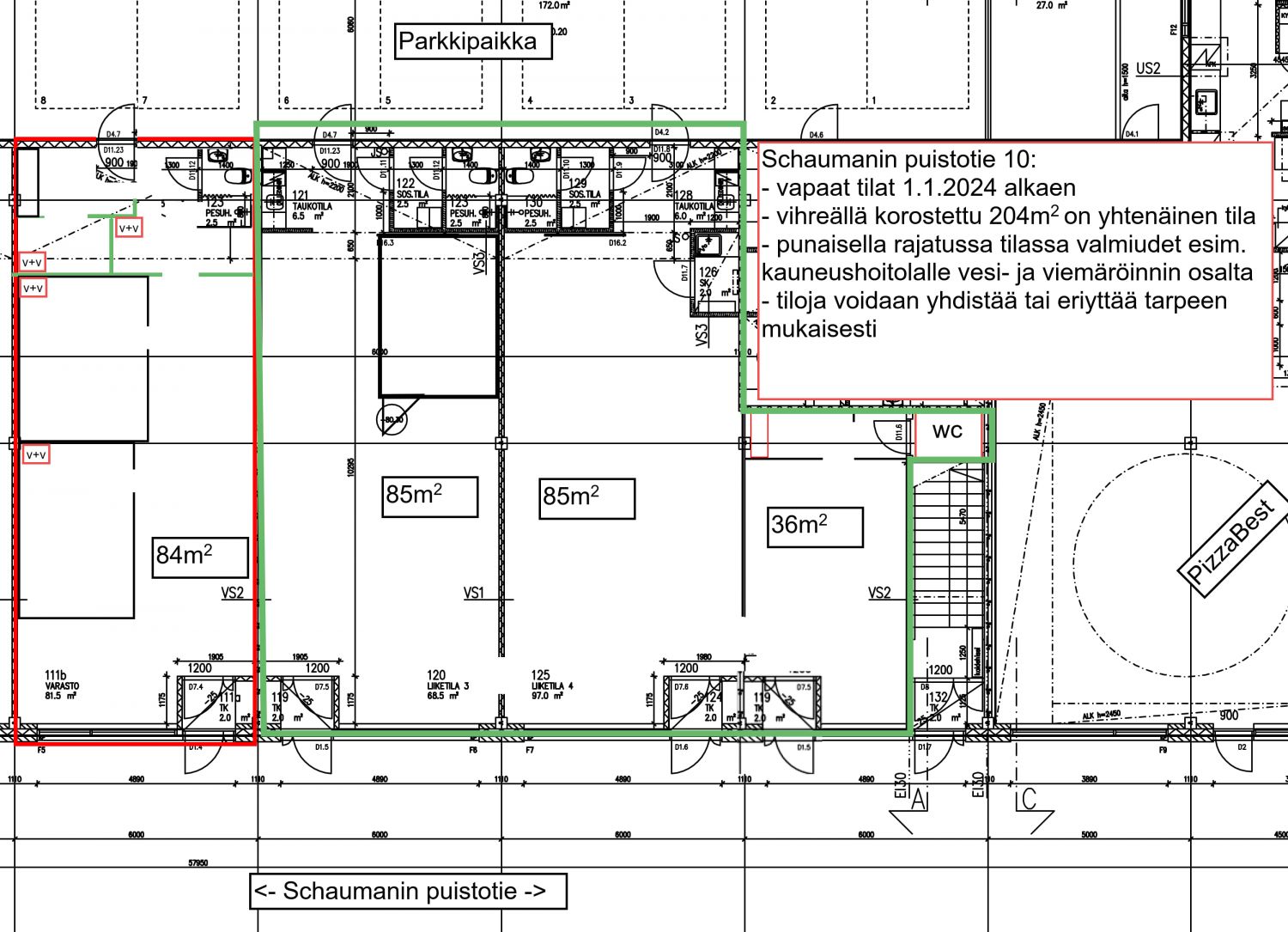
Siistiä, tehokasta ja persoonallista avotoimistoa Lutakon parhaalta paikalta
Osoite
Schaumanin Puistotie 10, 40100 Jyväskylä
Tilatyyppi
Liiketilaa
204 m2
Tilajako
Jaettavissa
Muuta
Vuokrataan 1.1.2024 vapautuva liike- ja toimistotilakokonaisuus katutasosta Lutakon pääkadulta. Vapautuva tila koostuu kolmesta erillisestä tilasta joissa kaikissa on oma wc- ja keittiötila. Vuokrataan yhdessä tai yksittäin.
Tilat ovat siistit ja julkisivunäkyvyys suurten ikkunoiden ansiosta on erittäin hyvä, julkisivussa valomainospaikat kunkin tilan kohdalla.
Tiloista suora käynti takapihalle jossa pysäköintialue, sekä avoin että katospaikkoja.
Tilat soveltuvat niin myymäläksi, toimistoksi kuin asiantuntijaorganisaation käyttöön.
Ota yhteyttä näyttöä varten.
Tilat ovat siistit ja julkisivunäkyvyys suurten ikkunoiden ansiosta on erittäin hyvä, julkisivussa valomainospaikat kunkin tilan kohdalla.
Tiloista suora käynti takapihalle jossa pysäköintialue, sekä avoin että katospaikkoja.
Tilat soveltuvat niin myymäläksi, toimistoksi kuin asiantuntijaorganisaation käyttöön.
Ota yhteyttä näyttöä varten.
Vapautuu
01.01.2024
Kerros
1
Jaettavissa
Ota yhteyttä
Infonia Oy
Kauppakatu 18 A, 40100 Jyväskylä
Näytä puhelinnumero
+358 407579731
Mikko Hirvi
Näytä puhelinnumero
+358 407579731
Pyydä lisätietoa
