Vuokrataan liiketilat - Jyväskylä
Schaumanin Puistotie 10, Lutakko, 40100 Jyväskylä #10774947
Siistiä, tehokasta ja persoonallista avotoimistoa Lutakon parhaalta paikalta
Osoite
Schaumanin Puistotie 10, 40100 Jyväskylä
Tilatyyppi
Liiketilaa
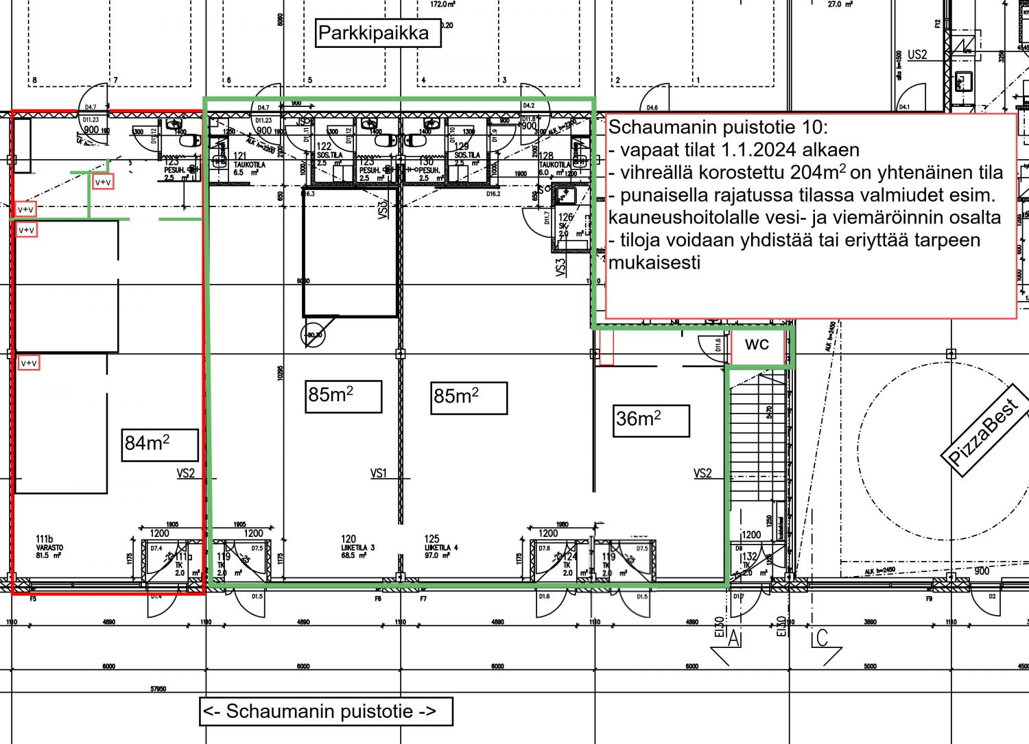
84 m2
Tilajako
Jaettavissa
Muuta
Vuokrataan heti vapaa liike- ja toimistotilakokonaisuus katutasosta Lutakon pääkadulta. Tila on ollut kauneusstudion käytössä ja siitä löytyy valmiiksi hoitohuoneet 2kpl joissa valmius vesipisteille (vesi ja viemäröinti).
Tila on siisti ja julkisivunäkyvyys suurten ikkunoiden ansiosta on erittäin hyvä, julkisivussa valomainospaikat kunkin tilan kohdalla.
Tiloista suora käynti takapihalle jossa pysäköintialue, sekä avoin että katospaikkoja.
Tilaa soveltuu hoitotilan lisäksi niin myymäläksi, toimistoksi kuin asiantuntijaorganisaation käyttöön.
Vieressä 1.1.2024 vapautuva 204m2 kokonaisuus joka tarvittaessa on yhdistettävissä tähän tilaan jolloin vuokrattavaissa lähes 300m2 kokonaisuus.
Ota yhteyttä näyttöä varten.
Tila on siisti ja julkisivunäkyvyys suurten ikkunoiden ansiosta on erittäin hyvä, julkisivussa valomainospaikat kunkin tilan kohdalla.
Tiloista suora käynti takapihalle jossa pysäköintialue, sekä avoin että katospaikkoja.
Tilaa soveltuu hoitotilan lisäksi niin myymäläksi, toimistoksi kuin asiantuntijaorganisaation käyttöön.
Vieressä 1.1.2024 vapautuva 204m2 kokonaisuus joka tarvittaessa on yhdistettävissä tähän tilaan jolloin vuokrattavaissa lähes 300m2 kokonaisuus.
Ota yhteyttä näyttöä varten.
Vapautuu
01.07.2023
Kerros
1
Jaettavissa
Ota yhteyttä
Infonia Oy
Kauppakatu 18 A, 40100 Jyväskylä
Näytä puhelinnumero
+358 407579731
Mikko Hirvi
Näytä puhelinnumero
+358 407579731
Pyydä lisätietoa
