Vuokrataan toimistotilat - Tampere
Haarlankatu 4, Onkiniemi, 33230 Tampere #10774912
Osoite
Haarlankatu 4, 33230 Tampere
Tilatyyppi
Toimistotilaa
406 m2
Muuta
Tampereen historiallinen Haarlan paperitehdaskiinteistö tarjoaa monipuolisia toimitiloja
Bertel Strömmerin suunnittelemassa tehdasrakennuksessa on toiminut v. 1920-1989 Kauppaneuvos Rafael Haarlan perustama Haarlan Paperitehdas Oy.
Tänä päivänä kiinteistö tarjoaa monipuolisia toimitiloja lukuisille eri alojen yrityksille. Tiloja on vuosien varrella remontoitu ja uudistettu ja siellä nykyaikaistetaan ja rakennetaan kokonaan uusia tiloja jatkuvasti.
Tämä punatiilinen kiinteistö sijaitsee heti Rantatunnelin länsipuolen tunnelin suulla ja sinne on erittäin hyvät kulkuyhteydet niin omalla autolla kuin ratikalla tai paikallisbussillakin. Pyöräilyreitti kulkee Näsijärven rannassa kiinteistölle. Keskustan ja Lielahden palveluihin on lyhyt matka, samoin kuin Särkänniemeen ja Santalahden puistoon. Paasikiven tien liikenne on erittäin vilkas ja näkyvyys kiinteistölle hyvä.
Pihassa on reilusti pysäköintitilaa. Peruspysäköintipaikat ovat ilmaisia kiinteistön vuokralaisille ja asiakkaille. Lämmitystolpallisia paikkoja on mahdollisuus vuokrata hyvin kohtuulliseen hintaan. Pihassa on myös sähköautoille latausmahdollisuus. Pihapiirin vanhassa kaarevassa pannuhuoneessa sijaitsee lounas-kahvio. Osaan kiinteistön tiloista on yhteys myös suurella tavarahissillä.
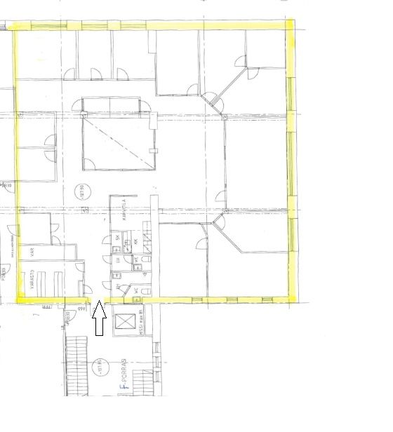
Vuokrattava tila:
F-rapun 2. kerroksessa sijaitseva toimistotila kooltaan 406m2. Ovipuhelin ja rapussa hissi ja luiska. Tila koostuu pääsääntöisesti useista erikokoisista huoneista ja keittiö- sekä wc-tiloista. Yhdessä sosiaalitilassa on paikat esim. pyykinpesukoneille. Hienot näkymät ikkunoista kolmeen eri suuntaan Pispalanharjulle, Santalahteen ja Näsijärvelle.
Toimitila soveltuu monenlaiseen toimintaan mm. toimistokäyttöön sekä erilaisten palvelujen tarjoajille. Ilmanvaihto ja jäähdytys. Tilaa on mahdollista räätälöidä käyttäjän tarpeisiin sopivaksi. Sinne on juuri uusittu omistajan toimesta uudenaikainen led-valaistus.
Ole yhteydessä, mennään tutustumaan paikan päälle.
Tilaa pääsee joustavasti katsomaan:
Annina Niemi
Myyntipäällikkö, LKV
annina.niemi@catella.com
040 4812 220
Tilanhakijalle palvelumme ovat maksuttomia.
Catella Property Oy on valtakunnallinen toimitilojen vuokraukseen ja myyntiin keskittynyt kiinteistönvälitysyritys.
Kysy paikallisilta ammattitaitoisilta välittäjiltämme myös muita välityksessämme olevia toimitilakohteita.
Välittäjiemme yhteystiedot ja lisää välitettäviä tilakohteita verkkosivuillamme: www.toimitilat.catella.fi.
Ota yhteyttä!
Bertel Strömmerin suunnittelemassa tehdasrakennuksessa on toiminut v. 1920-1989 Kauppaneuvos Rafael Haarlan perustama Haarlan Paperitehdas Oy.
Tänä päivänä kiinteistö tarjoaa monipuolisia toimitiloja lukuisille eri alojen yrityksille. Tiloja on vuosien varrella remontoitu ja uudistettu ja siellä nykyaikaistetaan ja rakennetaan kokonaan uusia tiloja jatkuvasti.
Tämä punatiilinen kiinteistö sijaitsee heti Rantatunnelin länsipuolen tunnelin suulla ja sinne on erittäin hyvät kulkuyhteydet niin omalla autolla kuin ratikalla tai paikallisbussillakin. Pyöräilyreitti kulkee Näsijärven rannassa kiinteistölle. Keskustan ja Lielahden palveluihin on lyhyt matka, samoin kuin Särkänniemeen ja Santalahden puistoon. Paasikiven tien liikenne on erittäin vilkas ja näkyvyys kiinteistölle hyvä.
Pihassa on reilusti pysäköintitilaa. Peruspysäköintipaikat ovat ilmaisia kiinteistön vuokralaisille ja asiakkaille. Lämmitystolpallisia paikkoja on mahdollisuus vuokrata hyvin kohtuulliseen hintaan. Pihassa on myös sähköautoille latausmahdollisuus. Pihapiirin vanhassa kaarevassa pannuhuoneessa sijaitsee lounas-kahvio. Osaan kiinteistön tiloista on yhteys myös suurella tavarahissillä.
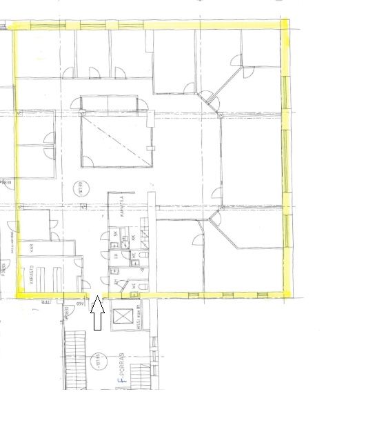
Vuokrattava tila:
F-rapun 2. kerroksessa sijaitseva toimistotila kooltaan 406m2. Ovipuhelin ja rapussa hissi ja luiska. Tila koostuu pääsääntöisesti useista erikokoisista huoneista ja keittiö- sekä wc-tiloista. Yhdessä sosiaalitilassa on paikat esim. pyykinpesukoneille. Hienot näkymät ikkunoista kolmeen eri suuntaan Pispalanharjulle, Santalahteen ja Näsijärvelle.
Toimitila soveltuu monenlaiseen toimintaan mm. toimistokäyttöön sekä erilaisten palvelujen tarjoajille. Ilmanvaihto ja jäähdytys. Tilaa on mahdollista räätälöidä käyttäjän tarpeisiin sopivaksi. Sinne on juuri uusittu omistajan toimesta uudenaikainen led-valaistus.
Ole yhteydessä, mennään tutustumaan paikan päälle.
Tilaa pääsee joustavasti katsomaan:
Annina Niemi
Myyntipäällikkö, LKV
annina.niemi@catella.com
040 4812 220
Tilanhakijalle palvelumme ovat maksuttomia.
Catella Property Oy on valtakunnallinen toimitilojen vuokraukseen ja myyntiin keskittynyt kiinteistönvälitysyritys.
Kysy paikallisilta ammattitaitoisilta välittäjiltämme myös muita välityksessämme olevia toimitilakohteita.
Välittäjiemme yhteystiedot ja lisää välitettäviä tilakohteita verkkosivuillamme: www.toimitilat.catella.fi.
Ota yhteyttä!
Vapautuu
vapaa
Kerros
2
Ota yhteyttä
Catella Property Oy
Hämeenkatu 13b A, 33100 Tampere
Näytä puhelinnumero
010 5220 100
Annina Niemi
Näytä puhelinnumero
040 4812 220
Pyydä lisätietoa
