Vuokrataan toimistotilat - Tampere
Haarlankatu 4, Onkiniemi, 33230 Tampere #10774911
Osoite
Haarlankatu 4, 33230 Tampere
Tilatyyppi
Toimistotilaa
404 m2
Muuta
Onkiniemessä vapaana monipuolista varasto-/tuotanto-/myymälä-/toimistotilaa
Tampereen historiallinen Haarlan paperitehdaskiinteistö tarjoaa monipuolisia toimitiloja.
Bertel Strömmerin suunnittelemassa tehdasrakennuksessa on toiminut v. 1920-1989 Kauppaneuvos Rafael Haarlan perustama Haarlan Paperitehdas Oy.
Tänä päivänä kiinteistö tarjoaa monipuolisia toimitiloja lukuisille eri alojen yrityksille. Tiloja on vuosien varrella remontoitu ja uudistettu ja siellä nykyaikaistetaan ja rakennetaan kokonaan uusia tiloja jatkuvasti.
Tämä punatiilinen kiinteistö sijaitsee heti Rantatunnelin länsipuolen tunnelin suulla ja sinne on erittäin hyvät kulkuyhteydet niin omalla autolla kuin ratikalla tai paikallisbussillakin. Pyöräilyreitti kulkee Näsijärven rannassa kiinteistölle. Keskustan ja Lielahden palveluihin on lyhyt matka, samoin kuin Särkänniemeen ja Santalahden puistoon. Paasikiven tien liikenne on erittäin vilkas ja näkyvyys kiinteistölle hyvä.
Pihassa on reilusti pysäköintitilaa. Peruspysäköintipaikat ovat ilmaisia kiinteistön vuokralaisille ja asiakkaille. Lämmitystolpallisia paikkoja on mahdollisuus vuokrata hyvin kohtuulliseen hintaan. Pihassa on myös sähköautoille latausmahdollisuus. Pihapiirin vanhassa kaarevassa pannuhuoneessa sijaitsee lounas-kahvio. Osaan kiinteistön tiloista on yhteys myös suurella tavarahissillä.
Vuokrattava tila:
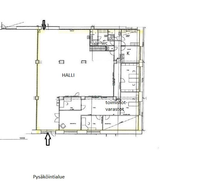
Katutasossa sijaitseva erittäin monikäyttöinen tila kooltaan 404m2. Oma sisäänkäynti pihasta, josta mahtuu ajamaan sisään esim. pakettiautolla. Lisäksi vaikka henkilökunnan käyttöön takaosassa käyntiovi yhteisen rapun kautta. Tilava halli-/varasto-osa sekä toimisto-osa, joka käsittää useita erikokoisia ja korkeita huoneita. Ikkunat kahteen suuntaan, rantatielle ja pihaan. Sosiaalitilat, mm. pukuhuoneet, wc-tilat ja suihkut. Juuri remontoitu keittiö. Lisäksi tilassa on parvi ja parven yhteydessä yksi huone.
Valoisaa ja korkeaa tilaa. Tilaan on juuri uusittu led-valaistus ja toimisto-osa käytävineen on remontoitu. Sinne on uusittu mm. lattiat ja ovet sekä tehty maaliremontti. myös keittiö on uusittu. Hyvä koneellinen ilmanvaihto.
Tämä tila soveltuu monenlaiseen toimintaan mm. varastomyymäläksi, huoltomyymäläksi, pientuotantoon, nettikauppatoimintaan, toimistokäyttöön, palvelujen tarjoajalle yms.
Ole yhteydessä, mennään tutustumaan paikan päälle. Tilaa pääsee joustavasti katsomaan:
annina.niemi@catella.fi tai p. 0404812220
Tampereen historiallinen Haarlan paperitehdaskiinteistö tarjoaa monipuolisia toimitiloja.
Bertel Strömmerin suunnittelemassa tehdasrakennuksessa on toiminut v. 1920-1989 Kauppaneuvos Rafael Haarlan perustama Haarlan Paperitehdas Oy.
Tänä päivänä kiinteistö tarjoaa monipuolisia toimitiloja lukuisille eri alojen yrityksille. Tiloja on vuosien varrella remontoitu ja uudistettu ja siellä nykyaikaistetaan ja rakennetaan kokonaan uusia tiloja jatkuvasti.
Tämä punatiilinen kiinteistö sijaitsee heti Rantatunnelin länsipuolen tunnelin suulla ja sinne on erittäin hyvät kulkuyhteydet niin omalla autolla kuin ratikalla tai paikallisbussillakin. Pyöräilyreitti kulkee Näsijärven rannassa kiinteistölle. Keskustan ja Lielahden palveluihin on lyhyt matka, samoin kuin Särkänniemeen ja Santalahden puistoon. Paasikiven tien liikenne on erittäin vilkas ja näkyvyys kiinteistölle hyvä.
Pihassa on reilusti pysäköintitilaa. Peruspysäköintipaikat ovat ilmaisia kiinteistön vuokralaisille ja asiakkaille. Lämmitystolpallisia paikkoja on mahdollisuus vuokrata hyvin kohtuulliseen hintaan. Pihassa on myös sähköautoille latausmahdollisuus. Pihapiirin vanhassa kaarevassa pannuhuoneessa sijaitsee lounas-kahvio. Osaan kiinteistön tiloista on yhteys myös suurella tavarahissillä.
Vuokrattava tila:
Katutasossa sijaitseva erittäin monikäyttöinen tila kooltaan 404m2. Oma sisäänkäynti pihasta, josta mahtuu ajamaan sisään esim. pakettiautolla. Lisäksi vaikka henkilökunnan käyttöön takaosassa käyntiovi yhteisen rapun kautta. Tilava halli-/varasto-osa sekä toimisto-osa, joka käsittää useita erikokoisia ja korkeita huoneita. Ikkunat kahteen suuntaan, rantatielle ja pihaan. Sosiaalitilat, mm. pukuhuoneet, wc-tilat ja suihkut. Juuri remontoitu keittiö. Lisäksi tilassa on parvi ja parven yhteydessä yksi huone.
Valoisaa ja korkeaa tilaa. Tilaan on juuri uusittu led-valaistus ja toimisto-osa käytävineen on remontoitu. Sinne on uusittu mm. lattiat ja ovet sekä tehty maaliremontti. myös keittiö on uusittu. Hyvä koneellinen ilmanvaihto.
Tämä tila soveltuu monenlaiseen toimintaan mm. varastomyymäläksi, huoltomyymäläksi, pientuotantoon, nettikauppatoimintaan, toimistokäyttöön, palvelujen tarjoajalle yms.
Ole yhteydessä, mennään tutustumaan paikan päälle. Tilaa pääsee joustavasti katsomaan:
annina.niemi@catella.fi tai p. 0404812220
Vapautuu
vapaa
Kerros
1
Ota yhteyttä
Catella Property Oy
Hämeenkatu 13b A, 33100 Tampere
Näytä puhelinnumero
010 5220 100
Annina Niemi
Näytä puhelinnumero
0404812220
Pyydä lisätietoa
