Vuokrataan toimistotilat - Espoo
Lars Sonckin Kaari 10-16, Leppävaara, 02600 Espoo #10774871
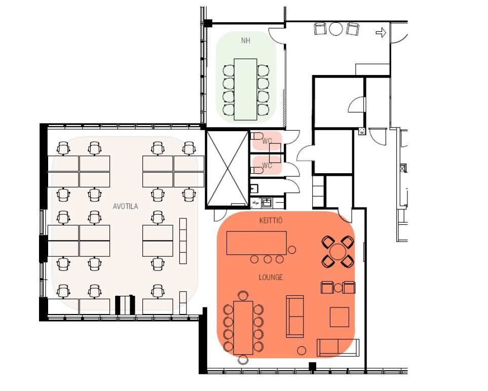
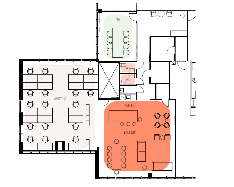
Tila on täysin remontoitu kesällä 2023 ja on täysin muuttovalmis, kaunis ja ihana. Yksi neuvotteluhuone, keittiölounge, avotoimistotilaa, yhteisöllinen työskentelyalue sekä kaksi wc-tilaa. Toimisto on valoisa lukuisten ikkunoiden johdosta. Keittiö tekee muut vihreäksi kateudesta.
Stella Business Park sijaitsee erinomaisella paikalla Espoon Leppävaarassa. Kokonaisuuteen kuuluvat neljä kiinteistöä jotka on ristitty Lunaksi, Terraksi, Solarikseksi ja Novaksi. Modernit toimitilat sopivat kaikenkokoisille toimijoille. Kohteessa vuokralaisella on hyvä olla kun palveluita työnarkeen löytyvät mm. aula- ja postituspalvelu, avara kuntosali, auditorio, kattokerroksen saunatilat, neuvottelukeskus, autopesula sekä lounasravintola. Juna-asemalle kävelet nopeasti ja autolla saapuvat iloitsevat että Stella Business Parkissa on myös kaksi suurta parkkihallia, runsaasti parkkitilaa sekä sähköauton latauspisteitä.
Croisette on uusi ja innovatiivinen toimitilojen välitysyritys Suomessa. Meillä on vahva halu auttaa teitä löytämään paras toimitilaratkaisu mahdollisimman vaivattomasti.
Huomaathan, että kaikki vapaat ja vapautuvat tilat ovat kauttamme saatavilla. Osa tiloista on hiljaisessa markkinoinnissa, mutta ottamalla meihin yhteyttä saat nekin tietoosi.
Palvelumme on tilanhakijoille täysin maksutonta.
Hissi
Croisette Real Estate Partner
Erottajankatu 5 A 6, 00130 Helsinki
Näytä puhelinnumero
+358 400 585 857
Croisette Vuokraus
Näytä puhelinnumero
+358400585857
