Vuokrataan toimistotilat, muut tilat - Kuopio
Kauppapaikka Herman, Leväsentie 2, 70700 Kuopio #10774865
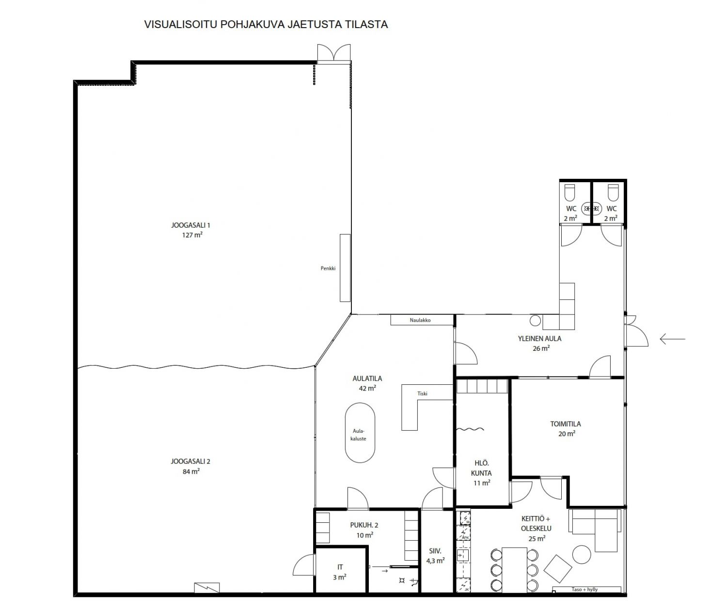
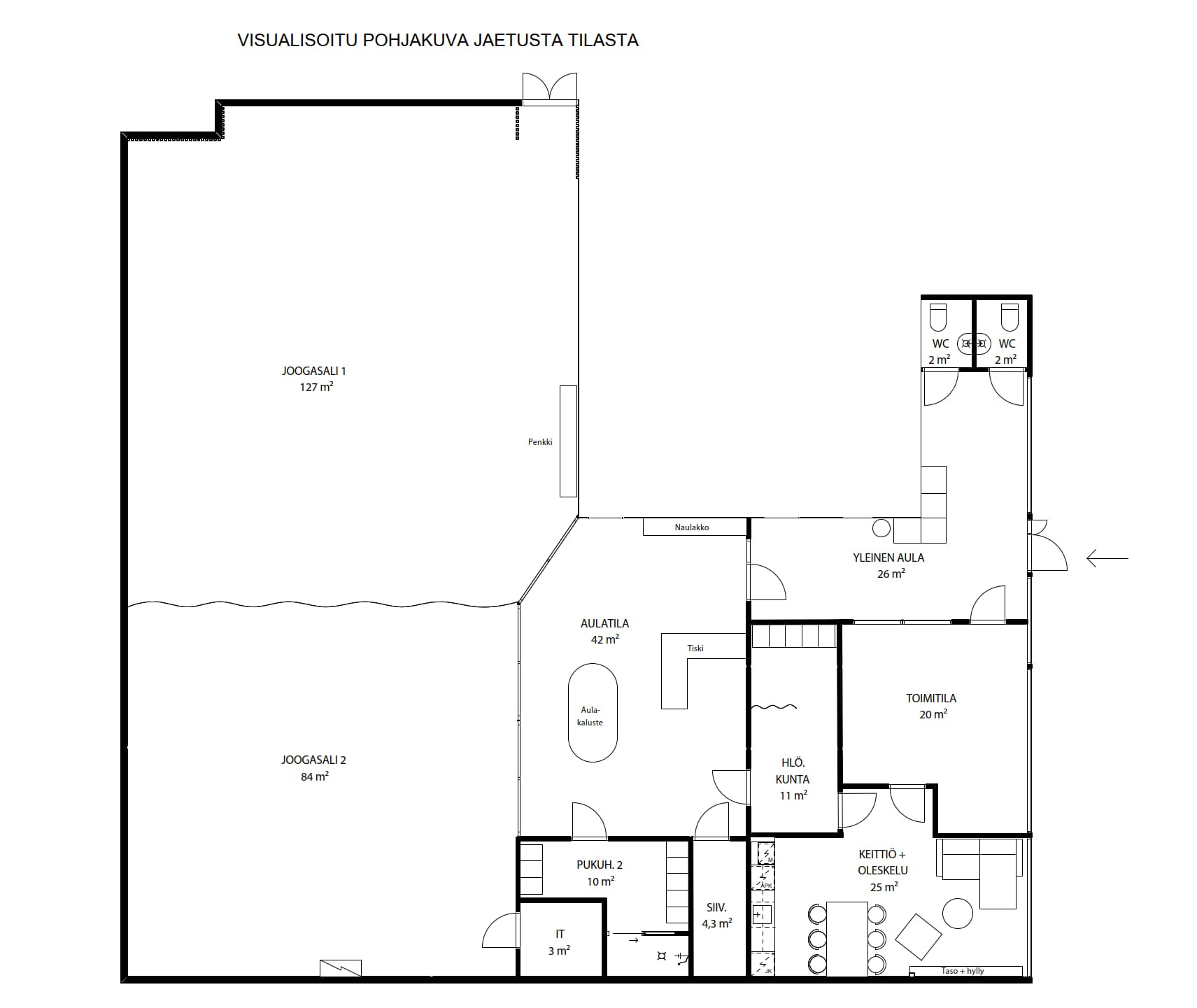
Kauppapaikka Hermannista toimitila 286m2 ja yhteiskäyttöinen keittiö, sisääntulo ja wc:t. Yhteiskäyttöalue on 98,5m2 yhteiskäyttö alueen siivouksesta huolehtii vuokranantaja. Lisäksi vuokralaisten käytössä on erillinen kokoustila, jonka voi varata sähköisen kalenterin kautta.
Vuokralainen voi suunnitella toimitilan omalle liiketoiminnalle sopivaksi. Visualisoiduista havainnekuvista näet miten tilan voisi muuttaa joogasaliksi tai muuhun vastaavaan toimintaa. Pohjakuvissa näkyy nykyinen tilanne sekä visualisoidut vaihtoehdot. Viereisessä tilassa vuokralaisena toimii hieroja. Hermannissa käy päivittäin noin 1000 henkilöä. Kauppakeskus on auki maanantaista sunnuntaihin klo 22 asti. Tämän tilan läheisyydessä on asiakashissi. Tila on heti vapaa.
Kiinteistöllä on hyvä kaksi ovinen lastauslaituri. Hermannissa on monipuolisesti liikkeitä sekä kahvila- ja lounasravintoloita. Iso laaja ilmainen asiakaspysäköintipiha-alue. Voit vuokrata oman autopaikan. Soita ja kysy lisää Minna Moisio 0505417349.
Hissi
Lastauslaituri

Fine LKV
Minna Moisio
Toimitilavuokraus, LKV
Näytä puhelinnumero
0505417349
minna@finelkv.fi
Leväsentie 2, 70700 Kuopio
Yliopistonkatu 28, 40100 Jyväskylä
Toimin kaupallisena managerina ja toimitilavuokraajana, otathan yhteyttä jos mietit mahdollisia muutostöitä tai esillä olevista toimitiloista ei löydy sitä mitä etsit. Selvitetään muut tila mahdollisuudet. Asiakaslähtöisyys on minulle tärkeää sekä asioiden sujuvuus. Ota yhteyttä, mielelläni autan sinua.
https://www.finelkv.fi/