Vuokrataan toimistotilat - Helsinki
Työpajankatu 13, Kalasatama, 00580 Helsinki #10774851
Modernia toimistotilaa hyvällä sijainnilla Kalasatamassa.
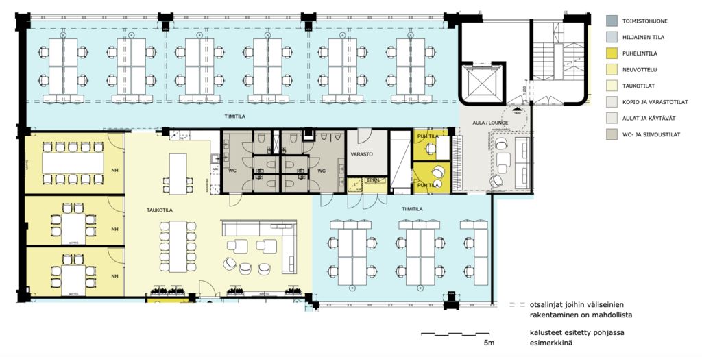
Tämä 441,5m2 toimistotila sijaitsee kiinteistön 5. kerroksessa. Toimistossa on huoneita, avotilaa sekä omat keittiö- ja wc-tilat.
Helsingin Työpajalla on erinomainen sijainti kauppakeskus Redin naapurissa sekä Kalasataman metroaseman miltei välittömässä läheisyydessä. Kohteessa suoritettiin peruskorjaushanke, jonka valmistui kevään 2018 aikana. Hankkeen aikana kohde modernisoitiin ja mm. kohteen talotekniikka sekä hissit uusittiin.
Toimistotilojen suunnittelussa panostettiin nykyvaatimusten mukaiseen muunneltavuuteen, viihtyisyyteen, tehokkuuteen ja laatuun. Kaikki yhteiskäytössä olevat neuvottelutilat, auditorio, kuntosali ja ravintola saivat uuden ilmeen. Myös pyöräilijät huomioitiin uusilla lukituilla parkkitiloilla sekä sosiaalitiloilla.
Kysy lisää numerosta 044 723 4700 tai info@bref.fi. Palvelumme on tilanhakijoille ilmainen.
Hissi
Bureau Real Estate Finland Oy
Lars Sonckin kaari 16, 02600 Espoo
Näytä puhelinnumero
0447234700
Bureau Real Estate Finland Oy
https://www.bref.fi