Vuokrataan toimistotilat - Helsinki
Hitsaajankatu 4, Herttoniemi, 00810 Helsinki #10774586
Vuokrattavana ensimmäisen kerroksen hyvätasoista ja siistiä toimistotilaa.
Osoite
Hitsaajankatu 4, 00810 Helsinki
Tilatyyppi
Toimistotilaa
342 m2
Kiinteistö
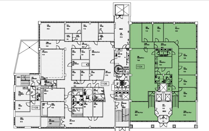
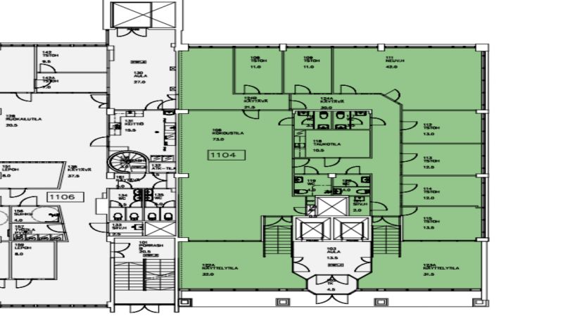
Vuokrattavana ensimmäisen kerroksen hyvätasoista ja siistiä toimistotilaa. Tilassa on useita toimistohuoneita, kokoustila ja taukotila. Sisäänkäynti on suoraan kadulle.
Sijainti
Herttoniemi, Helsinki
Pysäköinti
Autopaikat pihalla.
Palvelut
Herttoniemen palvelut.
Kulkuyhteydet
Erinomaiset kulkuyhteydet
Vapautuu
Heti
Kerros
1
Energiatehokkuusluokka
Ei lain edellyttämää energiatodistusta
Näkyvällä paikalla
Hissi
Ota yhteyttä
REALIUM OY LKV
Tammasaarenkatu 1, 00180 Helsinki
Vaihde:
Näytä puhelinnumero
010 326 346
Tuomo Mäkelä
tuomo.makela@realium.fi
p.
Näytä puhelinnumero
044 050 1158
Joel Keto
joel.keto@realium.fi
p.
Näytä puhelinnumero
045 317 0330
KAIKKI TILAVAIHTOEHDOT KERRALLA!
SOITA - MEILAA JA TILAA NÄYTTÖ!
Ilmainen palvelu tilanhakijoille.
Kartoitamme parhaat tilavaihtoehdot.
Kaikki kohteet eivät ole netissä.
Pyydä lisätietoa
