Vuokrataan toimistotilat - Helsinki
Tammasaarenkatu 7, Ruoholahti, 00180 Helsinki #10774515
Vuokrattavana toimistotilaa Helsingin Ruoholahdesta.
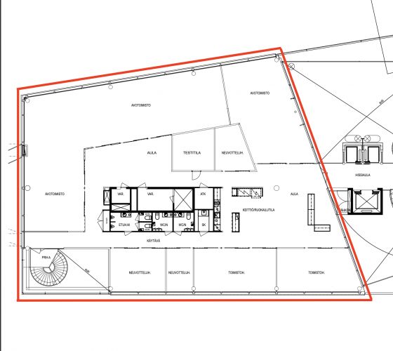
Vapaana 571 m² toimistokokonaisuus Vega -rakennuksen 2. kerroksessa. Tila koostuu avotoimistosta, muutamasta huoneesta sekä omista keittiö- ja wc-tiloista.
HTC Helsinki eli Tammasaarenkatu 1-7 koostuu viidestä toimistorakennuksesta, jotka tarjoavat yrityksille edistykselliset puitteet, nopeat tietoliikenneyhteydet ja näyttävät toimitilat Helsingin Ruoholahdessa. Tilat on rakennettu niin, että ne ovat helposti muunneltavissa asiakkaiden tarpeiden mukaisiksi. HTC:n ympäristö tarjoaa monipuolisia palveluita, muun muassa catering-, aula-, siivouspalveluita, henkilöstöravintolan ja kahvilan, autopesulan, kuntosalin sekä hieronta-ja kosmetologipalveluita. HTC:n yhteiset kokous- ja saunatilat ovat myös vuokralaisen käytössä.
Kysy lisää numerosta 044 723 4700 tai info@bref.fi. Palvelumme on tilanhakijoille ilmainen.
Bureau Real Estate Finland Oy
Lars Sonckin kaari 16, 02600 Espoo
Näytä puhelinnumero
0447234700
Bureau Real Estate Finland Oy
https://www.bref.fi