Vuokrataan liiketilat - Helsinki
John Stenbergin Ranta 2, Hakaniemi, 00530 Helsinki #10774498
Liiketilaa erinomaisella sijainnilla Hakaniemessä
Osoite
John Stenbergin Ranta 2, 00530 Helsinki
Tilatyyppi
Liiketilaa
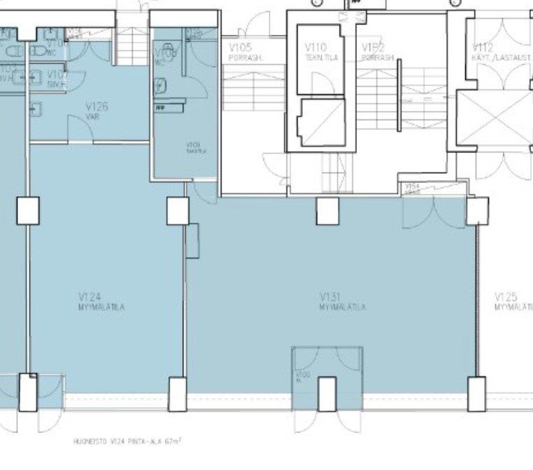
153 m2
Pysäköinti
Hallissa
Muuta
Vuokrataan siisti 153 m² liiketila Pitkänsillan kupeesta, Hakaniemen vilkkaalla kauppa-alueella.
Kiinteistö John S., joka toimi pitkään Wärtsilän pääkonttorina, on hieno punatiilinen talo aivan Pitkänsillan kupeessa. Rakennuksen ilmettä on uudistettu vuonna 2019 ja se on BREEAM In-Use ympäristösertifioitu arvosanalla Good.
Kiinteistössä on nykyaikaiset palvelut, kuten esimerkiksi ravintola, aulapalvelu, kokoustilat, kuntosali, pysäköintihalli (myös polkupyörille), sähköautojen latausmahdollisuus.
Tervetuloa tutustumaan, varaathan välittäjältä oman esittelyaikasi. Voit kysyä meiltä myös muita sopivia vaihtoehtoja, kauttamme löydät juuri teidän tarpeisiinne sopivat tilat. Palvelumme on tilanhakijalle veloitukseton!
Kiinteistö John S., joka toimi pitkään Wärtsilän pääkonttorina, on hieno punatiilinen talo aivan Pitkänsillan kupeessa. Rakennuksen ilmettä on uudistettu vuonna 2019 ja se on BREEAM In-Use ympäristösertifioitu arvosanalla Good.
Kiinteistössä on nykyaikaiset palvelut, kuten esimerkiksi ravintola, aulapalvelu, kokoustilat, kuntosali, pysäköintihalli (myös polkupyörille), sähköautojen latausmahdollisuus.
Tervetuloa tutustumaan, varaathan välittäjältä oman esittelyaikasi. Voit kysyä meiltä myös muita sopivia vaihtoehtoja, kauttamme löydät juuri teidän tarpeisiinne sopivat tilat. Palvelumme on tilanhakijalle veloitukseton!
Vapautuu
Kysy
Rakennusvuosi
1938
Kerros
1
Ota yhteyttä
Tuloskiinteistöt Oy
Rikhardinkatu 2 B 5, 00130 Helsinki
Näytä puhelinnumero
(09) 6841 620
Jorma Ryynänen
Commercial Real Estate Advisor LKV, LVV
Näytä puhelinnumero
+358 40 708 4064
Nina Meyke
Commercial Real Estate Advisor
Näytä puhelinnumero
+358 50 466 1519
Pyydä lisätietoa
