Vuokrataan toimistotilat - Espoo
Revontulentie 7, Tapiola, 02100 Espoo #10774484
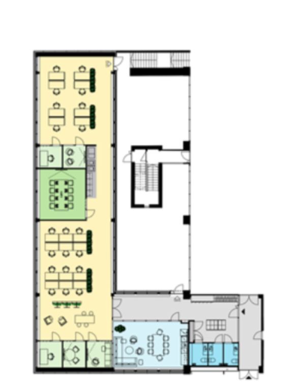
Vuokrattavana läpitalon muuttovalmista toimistotilaa.
Osoite
Revontulentie 7, 02100 Espoo
Tilatyyppi
Toimistotilaa
361 m2
Kiinteistö
Vuokrattavana läpitalon muuttovalmista toimistotilaa. Tilassa on viisi vetäytymistilaa ja yksi 8 hengen neuvotteluhuone.
Sijainti
Tapiola, Espoo
Pysäköinti
Autopaikkoja mahdollisuus vuokrata läheisestä Tapionaukion pysäköintilaitoksesta.
Palvelut
-Aulapalvelu
-Lounasravintola
-Neuvottelutilat
-Kuntosali
-Lounasravintola
-Neuvottelutilat
-Kuntosali
Kulkuyhteydet
-Metro
-Bussi
-Oma auto
-Bussi
-Oma auto
Vapautuu
Heti
Kerros
2
Energiatehokkuusluokka
Ei lain edellyttämää energiatodistusta
Näkyvällä paikalla
Hissi
Ota yhteyttä
REALIUM OY LKV
Tammasaarenkatu 1, 00180 Helsinki
Vaihde:
Näytä puhelinnumero
010 326 346
Tuomo Mäkelä
tuomo.makela@realium.fi
p.
Näytä puhelinnumero
044 050 1158
Joel Keto
joel.keto@realium.fi
p.
Näytä puhelinnumero
045 317 0330
KAIKKI TILAVAIHTOEHDOT KERRALLA!
SOITA - MEILAA JA TILAA NÄYTTÖ!
Ilmainen palvelu tilanhakijoille.
Kartoitamme parhaat tilavaihtoehdot.
Kaikki kohteet eivät ole netissä.
Pyydä lisätietoa
