Vuokrataan toimistotilat - Espoo
Mänkimiehentie 4, Kauklahti, 02780 Espoo #10774353
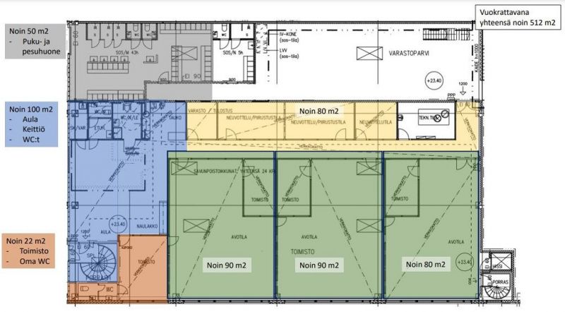
Vuokrataan toimistotilaa Espoon Kauklahdessa. Tilassa keittiö ja wc-tilat. Voidaan jakaa myös pienempiin osiin esimerkiksi ilmoituksen pohjakuvan mukaisesti.
Mänkimiehentie 4 sijaitsee Espoon Kauklahden teollisuusalueella. Varasto-osa on rakennettu 1997 ja toimisto 1990, jonka jälkeen toimisto on peruskorjattu pari vuotta sitten nykyaikaiseksi. Samassa kiinteistössä toimii myös konevuokraamo ja talotekniikka-alan yritys.
Lisätietoja soita 020 730 4530 tai info@repoint.fi. Palvelumme on tilanhakijalle ilmainen.
Repoint Toimitilat Oy
Itälahdenkatu 22 B, 00210 Helsinki
Näytä puhelinnumero
020 730 4530
Lisätietoja soita Näytä puhelinnumero 020 730 4530 tai info@repoint.fi
https://repoint.fi/