Vuokrataan liiketilat - Helsinki
Simonkatu 6, Keskusta, 00100 Helsinki #10774032
Vuokrattavana katutason siistiä liiketilaa.
Osoite
Simonkatu 6, 00100 Helsinki
Tilatyyppi
Liiketilaa
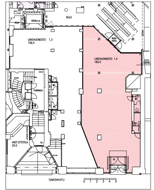
165 m2
Kiinteistö
Vuokrattavana katutason siistiä liiketilaa. Tilan voi yhdistää viereiseen 156,5 m2:n liiketilaan. Tilaan sisäänkäynti sekä Simonkadulta että kauppakeskuksen puolelta.
Sijainti
Helsingin keskusta, Kauppakeskus Forum.
Pysäköinti
Kampin pysäköintilaitos.
Palvelut
Helsingin keskustan monipuoliset palvelut.
Kulkuyhteydet
Erinomaiset julkiset kulkuyhteydet.
Muuta
Tila on toistaiseksi käytössä, vapautuminen sopimuksen mukaan. Tiloissa toimii tällä hetkellä parturi-kampaamo.
Vapautuu
Heti
Kerros
1
Energiatehokkuusluokka
Ei lain edellyttämää energiatodistusta
Katutasossa
Näkyvällä paikalla
Hissi
Ota yhteyttä
REALIUM OY LKV
Tammasaarenkatu 1, 00180 Helsinki
Vaihde:
Näytä puhelinnumero
010 326 346
Tuomo Mäkelä
tuomo.makela@realium.fi
p.
Näytä puhelinnumero
044 050 1158
Joel Keto
joel.keto@realium.fi
p.
Näytä puhelinnumero
045 317 0330
KAIKKI TILAVAIHTOEHDOT KERRALLA!
SOITA - MEILAA JA TILAA NÄYTTÖ!
Ilmainen palvelu tilanhakijoille.
Kartoitamme parhaat tilavaihtoehdot.
Kaikki kohteet eivät ole netissä.
Pyydä lisätietoa
