Vuokrataan toimistotilat - Oulu
Moreenitie 6, Rusko, 90630 Oulu #10773895
Osoite
Moreenitie 6, 90630 Oulu
Tilatyyppi
Toimistotilaa
160 m2
Vuokra
2000
Muuta
Vuokrataan Oulun Ruskossa osoitteessa
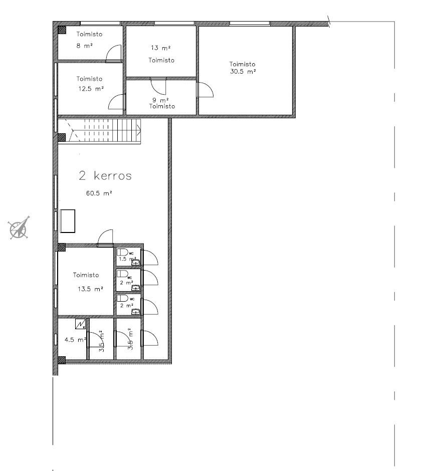
Moreenitie 6, 2. kerroksen toimistotila n. 160 m2.
2. kerroksen toimistotila on remontoitu.
Siellä on 6 erikokoista toimisto/ neuvotteluhuonetta, sauna ja 3 wc-tilaa.
Iso avotila portaiden yläpäässä, joka toimii myös taukotilana.
Huoneiston keittiö ja saunatilat ovat remontoidut uusiksi sekä seinapinnat ja katot maalattu.
Toimisto on heti vapaa.
Vuokra 2000,00 euroa/kk + alv.
Vuokra sidotaan indeksiin, minimikorotus 3% vuodessa.
Vuokralainen vastaa toimistotilan sähkö- vesi- ja jätevesikustannuksista sekä tilojensa siivouksesta.
Lämpö (kaukolämpö) sisältyy vuokraan.
Moreenitie 6, 2. kerroksen toimistotila n. 160 m2.
2. kerroksen toimistotila on remontoitu.
Siellä on 6 erikokoista toimisto/ neuvotteluhuonetta, sauna ja 3 wc-tilaa.
Iso avotila portaiden yläpäässä, joka toimii myös taukotilana.
Huoneiston keittiö ja saunatilat ovat remontoidut uusiksi sekä seinapinnat ja katot maalattu.
Toimisto on heti vapaa.
Vuokra 2000,00 euroa/kk + alv.
Vuokra sidotaan indeksiin, minimikorotus 3% vuodessa.
Vuokralainen vastaa toimistotilan sähkö- vesi- ja jätevesikustannuksista sekä tilojensa siivouksesta.
Lämpö (kaukolämpö) sisältyy vuokraan.
Vapautuu
Heti vapaa
Kerros
2
Ota yhteyttä
Catella Property Oy
Kirkkokatu 6, 5. krs, 90100 OULU
Näytä puhelinnumero
010 5220 100
Pekka Laurila-Harju
Näytä puhelinnumero
010 5220 603
Pyydä lisätietoa
