Vuokrataan toimistotilat - Espoo
Keilaranta 8, Keilaniemi, 02150 Espoo #10773807
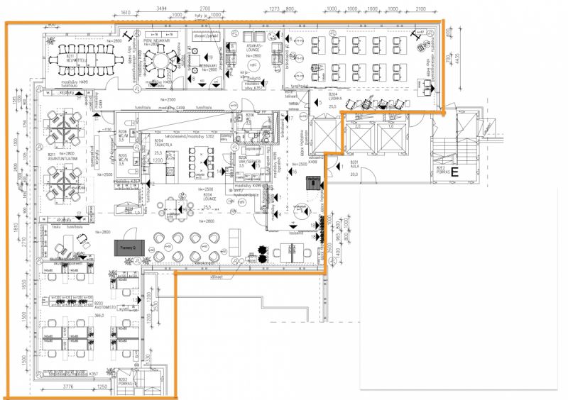
Vuokrataan hyväkuntoista ja siistiä toimistotilaa Keilaniemestä. Tila on kokonaisuudessaan 486 m2 ja se on mahdollista jakaa kahdelle eri käyttäjälle noin 215m2 ja 270 m2 tiloiksi.
Muuttovalmiissa tilassa on avotoimistoa, kolme neuvottelutilaa, sekä upea keittiö ja lounge-alue. Lisäksi tilassa on yksi koulutustilaksi tai työtilaksi soveltuva isompi huone. Tila on mahdollista vuokrata myös valmiiksi kalustettuna ja joustavat vuokrasopimukset ovat mahdollisia tähän tilaan.
Keilaranta 4 - 8 on moderni toimistokampus Keilaniemessa. Talossa on loistavat palvelut vuokralaisille. Kiinteistössä on aulapalvelu, erikseen vuokrattavia kokoustiloja ja yli 100 hengen auditorio, suosittu lounasravintola Factory, työmatkapyöräilijöille suihkut ja pukuhuoneet, kuntosali, sekä oma parkkihalli. Kiinteistön pihalla hyvin myös vieraspaikkoja.
Lisätietoja soita 020 730 4530 tai info@repoint.fi. Palvelumme on tilanhakijalle ilmainen.
Repoint Toimitilat Oy
Itälahdenkatu 22 B, 00210 Helsinki
Näytä puhelinnumero
020 730 4530
Lisätietoja soita Näytä puhelinnumero 020 730 4530 tai info@repoint.fi
https://repoint.fi/