Vuokrataan toimistotilat - Helsinki
Hitsaajankatu 4, Herttoniemi, 00810 Helsinki #10773742
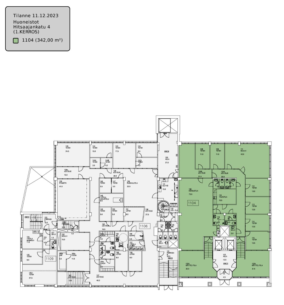
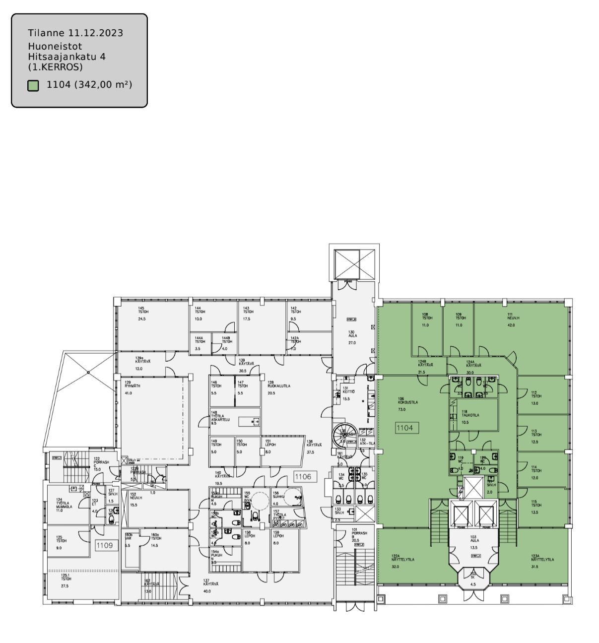
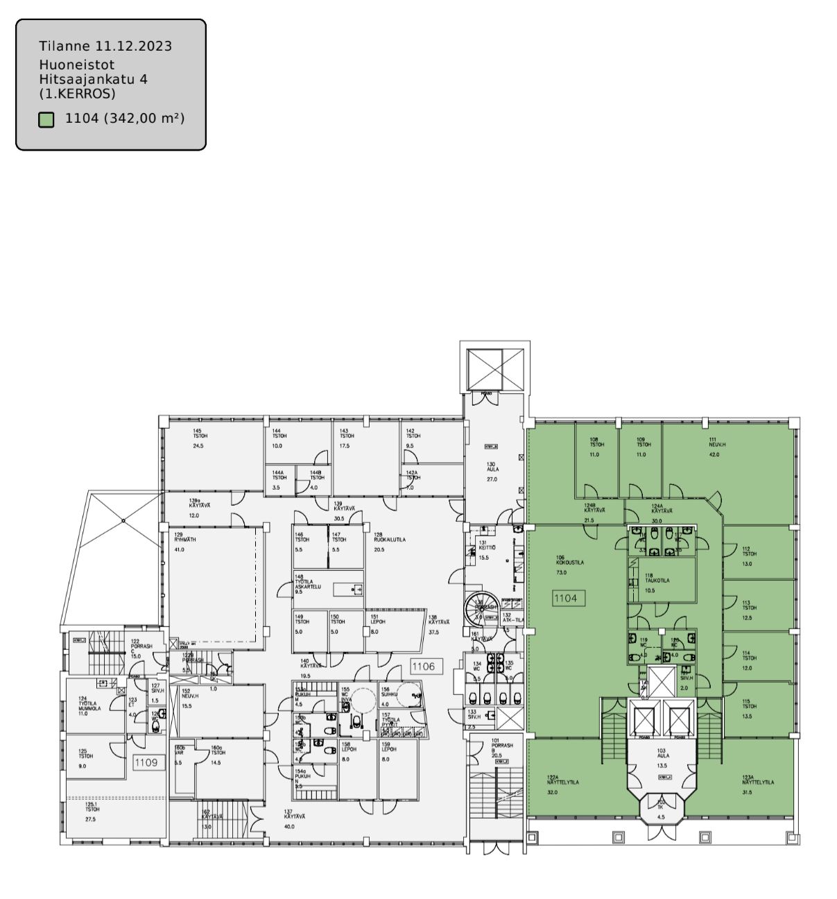
Vuokrattavana hyvätasoinen ja siisti huonetoimistotila Herttoniemen metroaseman läheisyydessä. Tila on osittain katutason tila, ja se koostuu sekä huoneista että avotilasta. Huoneistoon kuuluu 95 m2 varasto tavarahissiyhteydellä.
Tila on muunneltavissa käyttäjän tarpeiden mukaan.
Kiinteistössä myös vuokrattavana muita pieniä varastotiloja. Autopaikkoja löytyy pihalta.
Lisätiedot: 020 7290 710, sekä lisää kohteita osoitteesta: premises.fi
Energialuokka F.Kerros: 1
Osoite
Hitsaajankatu 4, 00810 Helsinki
Tilatyyppi
Toimistotilaa
342 m2
Kulkuyhteydet
Hyvät liikenneyhteydet. Bussi- raitiovaunu- ja metropysäkit kävelymatkan etäisyydellä.
Ota yhteyttä
CRE PREMISES
Puh. Näytä puhelinnumero 020 7290 710
Vantaankoskentie 14
01670 VANTAA
Pyydä lisätietoa
