Vuokrataan toimistotilat - Helsinki
Kaisaniemenkatu 6, Kaisaniemi, 00100 Helsinki #10773444
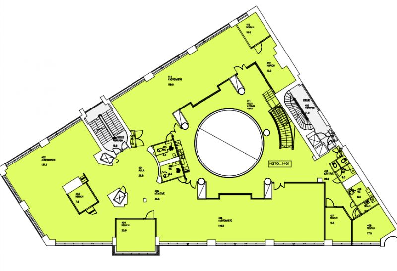
Vuokrattavana modernia avotoimistotila suositulla sijainnilla Kaisaniemessä.
Osoite
Kaisaniemenkatu 6, 00100 Helsinki
Tilatyyppi
Toimistotilaa
2135 m2
Kiinteistö
Vuokrattavana modernia avotoimistotila 3.-4. kerroksissa, jossa hieno kahden kerroksen atrium-tila. Toisessa kerroksesta löytyy upea, moderni neuvottelusiipi. Tilat voidaan vuokrata myös kalustettuna.
Sijainti
Kaisaniemi, Helsinki
Pysäköinti
Alueella sijaitsevat pysäköintilaitokset
Palvelut
Keskustan palvelut
Kulkuyhteydet
- Metroasema 100 m
- Raitiovaunupysäkki 100 m
- Bussipysäkki 200 m
- Juna-asema 400 m
- Raitiovaunupysäkki 100 m
- Bussipysäkki 200 m
- Juna-asema 400 m
Vapautuu
syksyllä 2026
Kerros
2.3.4.
Energiatehokkuusluokka
Ei lain edellyttämää energiatodistusta
Näkyvällä paikalla
Hissi
Ota yhteyttä
REALIUM OY LKV
Tammasaarenkatu 1, 00180 Helsinki
Vaihde:
Näytä puhelinnumero
010 326 346
Tuomo Mäkelä
tuomo.makela@realium.fi
p.
Näytä puhelinnumero
044 050 1158
Joel Keto
joel.keto@realium.fi
p.
Näytä puhelinnumero
045 317 0330
KAIKKI TILAVAIHTOEHDOT KERRALLA!
SOITA - MEILAA JA TILAA NÄYTTÖ!
Ilmainen palvelu tilanhakijoille.
Kartoitamme parhaat tilavaihtoehdot.
Kaikki kohteet eivät ole netissä.
Pyydä lisätietoa
