Vuokrataan liiketilat - Raisio
Tasalanaukio 3, Keskusta, 21200 Raisio #10773401
Liiketilaa Raisiosta
Osoite
Tasalanaukio 3, 21200 Raisio
Tilatyyppi
Liiketilaa
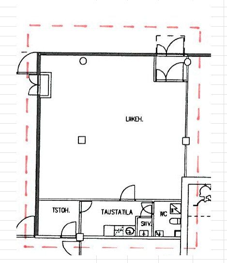
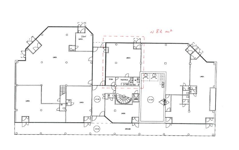
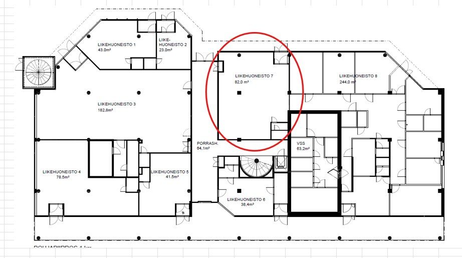
82 m2
Vuokra
1312 e
Muuta
Tarjotaan vuokralle Raisiontorin laidalta 82m2 toimiva liikehuoneisto.
Liikehuoneistosta löytyy avoimen tilan lisäksi pienet takatilat, jossa on keittiö sekä wc.
Huoneisto soveltuu erinomaisesti esim. myymälä- tai toimistokäyttöön.
Tila on heti vapaa.
Vuokraan lisätään alv.
Tervetuloa tutustumaan, varaathan välittäjältä oman esittelyaikasi. Voit kysyä meiltä myös muita sopivia vaihtoehtoja, kauttamme löydät juuri Teidän tarpeisiinne sopivat tilat.
Palvelumme on tilanhakijalle veloitukseton!
Liikehuoneistosta löytyy avoimen tilan lisäksi pienet takatilat, jossa on keittiö sekä wc.
Huoneisto soveltuu erinomaisesti esim. myymälä- tai toimistokäyttöön.
Tila on heti vapaa.
Vuokraan lisätään alv.
Tervetuloa tutustumaan, varaathan välittäjältä oman esittelyaikasi. Voit kysyä meiltä myös muita sopivia vaihtoehtoja, kauttamme löydät juuri Teidän tarpeisiinne sopivat tilat.
Palvelumme on tilanhakijalle veloitukseton!
Vapautuu
Kysy
Kerros
katutaso
Ota yhteyttä
Tuloskiinteistöt Oy
Rikhardinkatu 2 B 5, 00130 Helsinki
Näytä puhelinnumero
(09) 6841 620
Karoliina Eklund
Leasing Support Specialist
Näytä puhelinnumero
+358 40 017 8999
Ritva Nuotio
Commercial Real Estate Advisor LKV, KED
Näytä puhelinnumero
+358 50 5261 744
Pyydä lisätietoa
