Vuokrataan toimistotilat - Espoo
Niittyrinne 7, Yli-Finnoo, 02270 Espoo #10773279
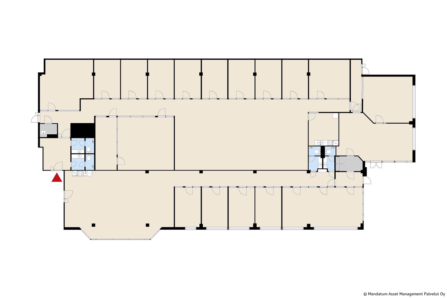
Vuokrataan kiinteistön kolmannessa kerroksessa sijaitseva muuntojoustava toimistotila. Tila on muokattavissa avo-, huone- tai monitilatoimistoksi vuokralaisen tarpeiden mukaan. Jaettavissa kahdelle käyttäjälle. Perille pääsee niin autolla kuin julkisilla liikennevälineillä.
Osoite
Niittyrinne 7, 02270 Espoo
Tilatyyppi
Toimistotilaa
740 m2
Kiinteistö
Espoon Niittyrinne 7
Pysäköinti
Kiinteistön pihalla on runsaasti pysäköintitilaa.
Muuta
Tilan ominaisuudet: tilassa on ilmastointi, avo-/kombitoimisto
Vapautuu
Heti vapaa
Kerros
3.
Energiatehokkuusluokka
C
Ota yhteyttä
Mandatum Asset Management Palvelut Oy
Bulevardi 56, 00120 Helsinki
Näytä puhelinnumero
020 031 100
Tapio Reponen
Näytä puhelinnumero
0400 468 468
Pyydä lisätietoa
