Myydään toimistotilat, liiketilat, näyttelytilat, työtilat - Oulu
Toppilansaarentie 3 B17, 90510 Oulu #10772562
Myydään vuoden 2005 asuntomessualueelta hyvän mallinen liiketila, joka soveltuu monenmoisen toimintaan!
Soveltuu hyvin esim. toimistokäyttöön.
Vuoden 2025 asuntomessut asemoituvat Toppilansalmen alkuossa.
Osoite
Toppilansaarentie 3 B17, 90510 Oulu
Tilatyyppi
Toimistotilaa
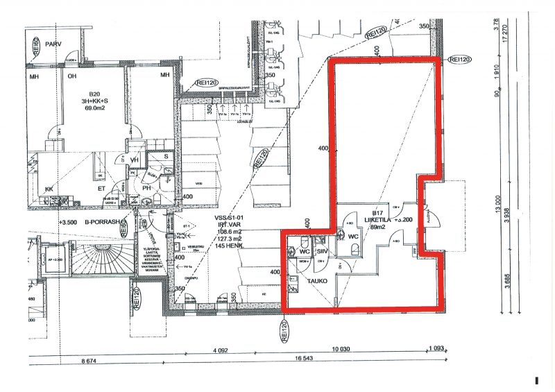
89 m2
Liiketilaa
89 m2
Näyttelytilaa
89 m2
Työtilaa
89 m2
Yhteensä
89 m2
Pohjapiirros
Myyntihinta
121.441€, velattomana 125.000€
Sijainti
Huoneisto asemoituu rakennuksen kulmaukseen, joten sen saatavuus on erinomainen.
Ympäristö
Toppilansalmen alue
Pysäköinti
Saatavana pistokepaikka hintaan 3000€
Palvelut
K-Supermarket Toppila on valittu vuoden 2023 Suomen parhaaksi K-Supermarketiksi!
Kulkuyhteydet
Bussi no.15 reitti kulkee huoneiston vierestä
Muuta
Hoitovastike 350,05€, rahoitusvastike 199,20, lainaosuus 31.7.2024 3559€.
Huoneistossa oma hyvätasoinen ilmanvaihtokone.
Huoneistossa oma hyvätasoinen ilmanvaihtokone.
Vapautuu
Vuokrattu, irtisanomisaika 3kk
Rakennusvuosi
2017
Kerros
1 / 4
Energiatehokkuusluokka
C2018
E-luku
107 kWhE/m²/vuosi
Katutasossa
Näkyvällä paikalla
Ota yhteyttä
Pohjois-Suomen Toimitilat Oy
Sepänkatu 20, 90100 Oulu
Pekka Valkola
Näytä puhelinnumero
044 311 0555
Pyydä lisätietoa
