Vuokrataan toimistotilat - Helsinki
Haapaniemenkatu 9, Merihaka, 00530 Helsinki #10772440
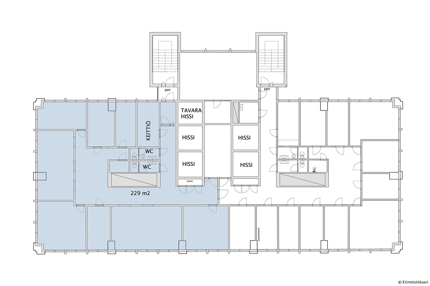
Vuokrataan siistissä kunnossa oleva muuttovalmis toimistotila, josta on upeat näkymät. Työhuoneista ja avotyötilaa sisältävä kokonaisuus. Edullinen vuokra ja joustavat sopimusehdot! Ota yhteyttä, kysy lisätietoja ja sovi henkilökohtainen tutustumiskäynti tähän toimitilaan.
Kiinteistökaari Oy
Haapaniemenkatu 9, 00530 Helsinki
Näytä puhelinnumero
050 5050 535
Tony Tuominen
Näytä puhelinnumero
050 505 0535
Riku Nisula
Näytä puhelinnumero
040 923 0781
Jarkko Kilpinen
Näytä puhelinnumero
0400 490 679
Kiinteistökaari Oy on kiinteistösijoitusyhtiö, joka ostaa, kehittää, myy, vuokraa ja hallinnoi laadukkaita kiinteistökohteita pääkaupunkiseudulla.
https://kiinteistokaari.fi